——我们只谈有依据、有实用的干货
前文(十五)、(十六)功课做好了,就看落实在具体的楼层选择了 。
一、关于楼层,再强调一下
1、房产设计中,越低的楼层需要承受楼上更多楼层的重量,因此楼层低的房子内,其柱子是更大的,那么就挤占了套内空间,在使用上是缺陷 。
以18层为例:
1至6楼柱子最大;
7至12楼柱子次之;
13至18层柱子最小 。
2、空气中浮尘的主要停留高度是20米至30米之间(无风、微风情况下),因此6至11楼空气质量差 。
3、房产销售价格是随着高度越高而逐层加价 。
结合以上三点,18层楼建筑中,性价比最高的应该是13层至15层 。当然,也有人对14这个数字感觉不好 。
二、朝向选择
1、建筑设计都遵循东西对称设计,东侧端头户型与西侧端头户型是一样面积,一样格局 。只是分别朝向东、西 。中间户型也是如此 。
很多人,第一感是直接选择东侧,其实具体情况需要实地区别而定 。
开发商取得地块是,由于地块的边缘线不可能完全是正东正西方向,因此也导致了房产开发设计中无法完全做到正方向的坐北朝南 。
因此,项目会根据地块走向略做微调,得以解决地块的利用率 。
这个问题就专业性很强,普通的售楼部都未必知道 。
以福州为例(北纬26度),最佳的朝向是坐北朝南略向东偏移11度,可做到最佳的日照采光的最大值 。
因此,未必就是东侧户型是最好的,而是要依据其实际的楼栋朝向而定 。这个问题有一定的专业性,需要细致了解实地情况 。
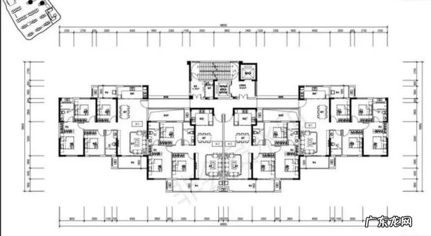
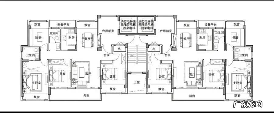
2、需要看楼栋南侧立面的凹凸形状而定 。
如图:

文章插图
朝南面凸出,早上影响西侧户型日照,下午反之
南侧两户型向南凸出,中午后,随阳光西移,东侧端头户型基本没有日照了,而常规情况下,特别是冬季,西侧端头户型更优质;
如果选择中间两户型,那么,差异不大,主要考虑东侧户型 。

文章插图
【风水上18层不吉利吗 风水上15层吉利吗】如果是这种标准层,南向立面平直,互不干扰日照,则东侧为宜 。
- 真龙吐珠风水宝地 黄龙吐珠风水宝地图片
- 影响男主人健康的家庭风水 风水男主位置放什么好
- 陈易龙伤官 陈易龙风水学
- 风水中的华盖山是什么意思 风水华盖山是什么形状
- 风水中的气 风水中的地气是什么
- 房子在寺庙东边好不好 房子西边有庙风水好吗
- 初一可以剪头发吗风水 初三剪头发吉利吗
- 房顶裂开是不是风水不好 农村自建房墙角开裂
- 九步台阶的讲究风水 台阶风水的正确步数
- 有点大病的个性签名 病女风格个性签名
特别声明:本站内容均来自网友提供或互联网,仅供参考,请勿用于商业和其他非法用途。如果侵犯了您的权益请与我们联系,我们将在24小时内删除。
