作者:rioliang1
在张大妈混迹4年有余,在各位值友的指引下,期间剁手无数,斩获了不少价廉物美的好宝贝,但数次提起念头想和大家一起分享,却终究败给了晚期懒癌 。深感这种只索取、不付出的行为,有违本站的分享精神,也令小弟内心深处良心稍许不安,因此正值小宅装修完成几个月有余,和大家一起分享一下装修历程和成果 。
先晒一张客厅全景图,各位看官若有兴趣,再继续往下听小弟娓娓道来 。

文章插图
小宅05年小高层,套内面积大概90余平,常住人口2人 。小弟从事金融,对建筑设计一窍不通,但装修前拜访了一些所谓的建筑设计公司后,并不是十分满意,一般设计师能为你做的就是常规家具布局以及添加一些花里胡哨的装饰,并不能起到想象中脱胎换骨的效果 。

文章插图
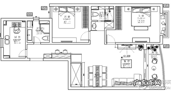
上图为设计师免费量房后得到的设计图,基本上就是画了户型结构图而已(没有给任何尺寸标准),与原户型基本完全相同,没有作较大修改,并且不能达到之前告知的对小宅的功能需求 。先后找了3、4家设计公司,基本设计理念完全是按他们的模子来,小作修改,没有真正从客户需求出发 。既然如此,那就索性就从实际功能和需求出发,抛弃繁文缛节,减去一切能减的造型设计,自己画图自己设计,花点心思后能胜过70%设计师 。
因为装修之前已经入住2年有余,所以对自己的生活作息习惯有深刻的了解 。本次装修就首先从结构上开刀,把原户型的2室2厅2卫改成了2室1厅1卫,减少房间,增加每个区域的空间感,达到小房子、大空间、舒适性强的效果 。从功能上看,1)删除次卫,主要考虑是仅夫妻2人不需要2个卫生间,且家里人对入户门正对卫生间的风水有所忌讳;把次卫空间并入厨房后,厨房面积达到了13-14平米,操作台面不再拥挤,3、4人共厨也绰绰有余,各种烘培料理不在话下,增加了周末乐趣和家庭幸福感;2)主卫原先仅有4平米左右,部分占用了主卧的空间以后,大概6-7平,双台盆、宽敞的淋浴房、温暖的泡澡木桶,都可以实现;3)客厅的功能最为重要,小弟和女王平时里都喜欢待在客厅,一般性工作也不愿在书房窝着完成,所以客厅被打造成集娱乐、工作为一体的多功能空间;4)原先晒衣区占据了整个阳台,挂满衣服后不仅挡住了光线,而且也不雅观;这次就专门为之开辟了一个3-4平的洗衣房 。

文章插图
大致结构确定下来以后,就开始思考设计风格,由于确实缺乏设计感,也没有心思专门深入研究,所以为避免各种风格混搭后的不协调,最终决定最求最少的颜色,最简单的设计(也就是没有设计) 。小弟对各种施工材料以及环保性十分讲究,所以基本是选择了清包,所有硬装材料都是各品牌的淘宝旗舰店,鼠标一点,送货到家,找了一个熟识的游击队后,就开始风风火火装修了 。期间对各种墙面材料、电路、空气开关也是恶补了一番,花了不少精力,但保证了隐蔽工程的高质量和安全性,这里就先不展开了,值友若有需求,小弟择日再写一篇硬装篇 。
下面开始晒装修成果:
(一)厨房:整体效果如下,主要分为小家电区、洗菜加工区、烹饪区、料理摆放区和一个小型中岛 。

文章插图
- 吃柚子能不能减肥? 吃柚子可以减肥吗
- 淘宝店铺没有品牌授权可以上架品牌衣服吗
- 有哪些平价的化妆品可以推荐
- 阳了可以喝纯牛奶吗 喝牛奶注意事项
- 阳了可以运动吗 运动的注意事项是什么
- 企业不跟员工签合同,员工可以要求赔偿吗 企业跟员工不签合同
- 集体产权是什么产权 集体产权的房屋
- 工抵房网签是什么意思 工抵房可以网签吗
- 淘宝限制投诉多久可以恢复?如何恢复?
- 淘宝核销单可以退款吗?电子凭证怎么退?
特别声明:本站内容均来自网友提供或互联网,仅供参考,请勿用于商业和其他非法用途。如果侵犯了您的权益请与我们联系,我们将在24小时内删除。
