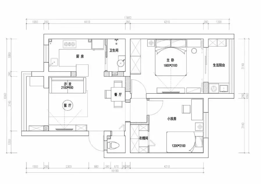
76平的简约风小户型二居室, 半开放式厨房宽敞又好看

76平的简约风小户型二居室, 半开放式厨房宽敞又好看

----76平的简约风小户型二居室 半开放式厨房宽敞又好看//----

76平的简约风小户型二居室, 半开放式厨房宽敞又好看

----76平的简约风小户型二居室 半开放式厨房宽敞又好看//----

76平的简约风小户型二居室, 半开放式厨房宽敞又好看

特别声明:本站内容均来自网友提供或互联网,仅供参考,请勿用于商业和其他非法用途。如果侵犯了您的权益请与我们联系,我们将在24小时内删除。