
文章插图
一层的两间卧室内部洗手间安装了隐蔽门,保持室内整洁 。其中一间卧室朝向平台和花园开放,另外一间享有光线充足的私密平台,强调室内的空间感 。二层的两间卧室具有一个公共平台(像盒子一样悬在餐厅上方) 。主卧套间配有一间大卧室和两个座位区;其中一个座位区是配有舒适长椅、一个更衣室、一个像spa一样浴室的绿色空间,另一个座位区可以俯瞰私密露台,露台引来许多鸟类,适合在这里享受一个悠闲的早上 。
▼卧室空间

文章插图
▼卧室的小庭院

文章插图
▼洗手间

文章插图
内部体量形成庭院上方的突出体块,镂空板过滤光线,保证所需的私密性,位于三层的媒体室延伸到一个家庭露台处,从储藏室可以看到另一个露台、卫生间和大厅 。通高的滑动门可以打开,将媒体室与大厅相连变成更大的空间 。
▼露台夜景

文章插图
▼建筑夜景

文章插图

文章插图
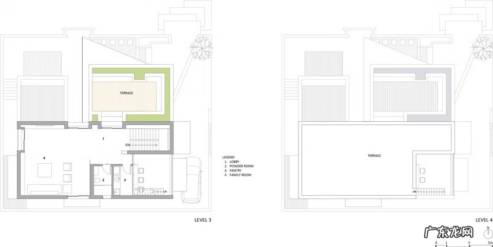
▼平面

文章插图

文章插图
▼立面

文章插图

文章插图
▼剖面

文章插图
【印度生发风水 印度沙漠风水】
- 中国风水学墓地风水 林生斌墓地风水
- 邕宁龙岗风水 邕宁良信风水
- 宅地风水图片大全 祖宅的风水
- 韶关有风水大地吗 韶关市香槟小城
- 鸟形风水宝地有几种 鸳鸯山风水宝地图
- 韦氏天星风水创始人是谁 姓韦的风水师
- 中国风水最好的城市排行榜 城市怎么看风水
- 房子东北角是厕所风水怎么样 厕不盖东南的风水原理
- 古村落风景图片 千年风水古村落大全景图集
- 影响家人健康的风水 爸爸的风水到我好
特别声明:本站内容均来自网友提供或互联网,仅供参考,请勿用于商业和其他非法用途。如果侵犯了您的权益请与我们联系,我们将在24小时内删除。
