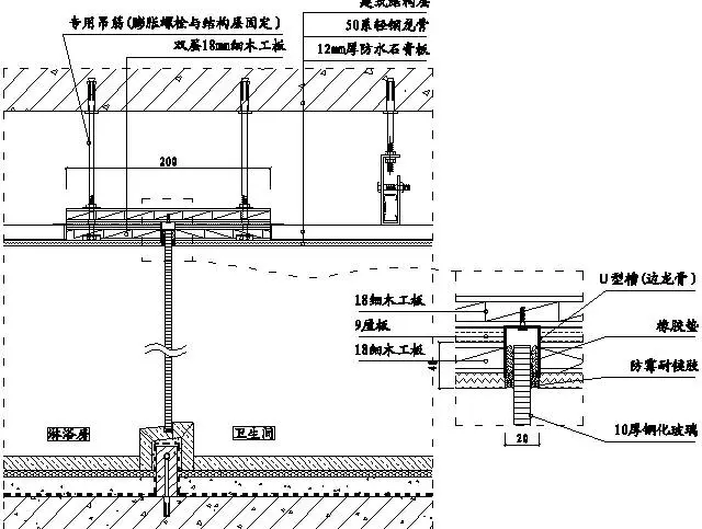
精装修工程细部节点构造施工示意图(17) 2019-01-24 1、室内普通地面石材施工示意图 2、室内防水地面石材施工示意图 3、阳台地面石材(砖)施工示意图 4、地面地漏安装示意图 5、卫生间地漏施工示意图 6、卫生间地漏施工示意图 7、开门淋浴房石材施工示意图 上一页131415161718192021下一页 特别声明:本站内容均来自网友提供或互联网,仅供参考,请勿用于商业和其他非法用途。如果侵犯了您的权益请与我们联系,我们将在24小时内删除。