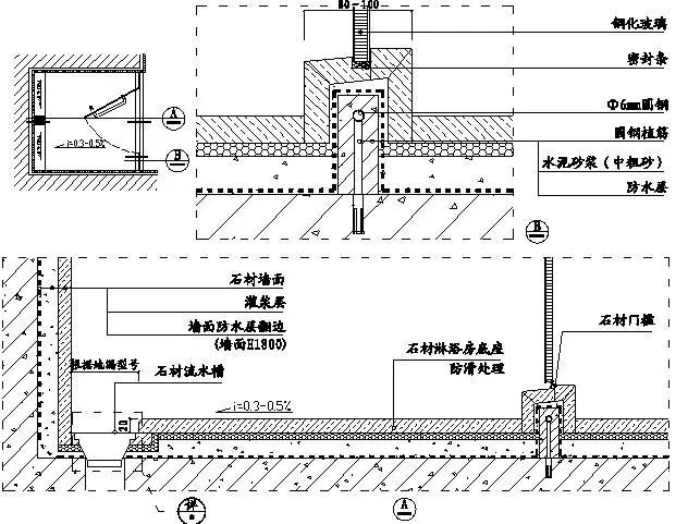
精装修工程细部节点构造施工示意图( 二 )

----精装修工程细部节点构造施工示意图//----

精装修工程细部节点构造施工示意图

----精装修工程细部节点构造施工示意图//----

精装修工程细部节点构造施工示意图

----精装修工程细部节点构造施工示意图//----

特别声明:本站内容均来自网友提供或互联网,仅供参考,请勿用于商业和其他非法用途。如果侵犯了您的权益请与我们联系,我们将在24小时内删除。