阁楼:晒台、库房
05

文章插图
这款三层别墅极具东方气质,融入了东方文化精髓,更契合中国人的习惯 。整体外观呈现深色调,为米黄色主体和深褐色的边饰,浑然一体,非常美观而且典雅 。
开间: 12.70m,进 深: 12.60m,占地面积: 151.89㎡,建筑面积: 381.69㎡,建筑风格:新中式风格,结构形式:砖混结构,主体造价: 35万~45万

文章插图

文章插图
一层:玄关、客厅、餐厅、厨房、娱乐室、卧室(带衣帽间)、卫生间
玄关,不仅给室内空间增添了一丝神秘感,通过以加强室内的空间感,层次感,客厅上空高度比较高,可以从二楼的家庭室俯视整个客厅,凸显出一种,华丽,大气的感觉 。

文章插图
二层:家庭厅(带露台)、卧室(带衣帽间、内卫)、儿童房、书房(带露台)、卫生间
两个小露台更适合一个两个人两天,赏景,家庭室连接了二楼所有的空间,同时在一家人交流的重要场所 。

文章插图
三层:健身区域、主卧(带衣帽间、内卫)、2卧室、卫生间、露台
大露台的话更适合家庭聚会啊,烤烤烧烤,锻炼身体等等都是不错的选择.
06

文章插图
占地尺寸19.8x15.5米,白墙黛瓦的江南风格深深地影响着农村的住宅,写意的建造手法,在依山傍水之地,修盖一栋小桥流水,曲径通幽的中式四合院,古朴沉静的味道,让人回味无穷 。盖完全村人都羡慕,都夸盖得好!

文章插图

文章插图
一层:庭院、厨房、餐厅、娱乐室、卧室、大厅、2卧室(带内卫)、洗漱间、公共卫生间

文章插图
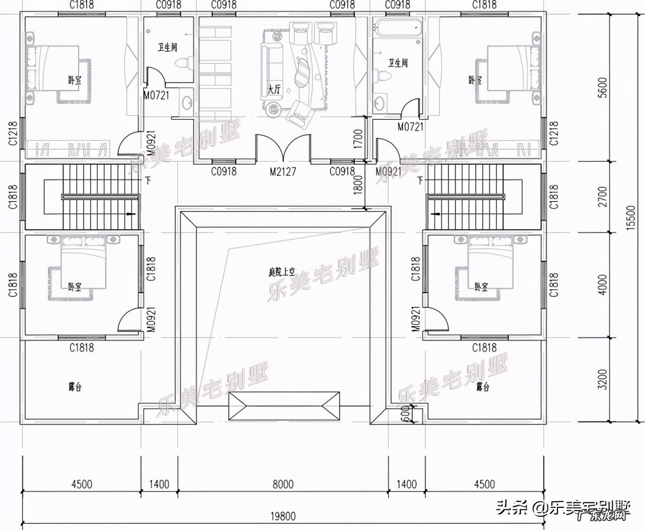
【别墅设计图纸大全 别墅风水设计图纸大全】二层:大厅、3卧室、主卧(带内卫)、公共卫生间、2露台
- 淘宝详情页设计用PS怎么做
- 轻钢别墅跟红砖建房哪个好?
- 别墅什么户型最好?
- 别墅大门方位风水 别墅屋门入口风水布局
- 坟墓丁山癸向好吗 癸山丁向风水
- 柠檬茶广告设计 柠檬茶广告文案
- 发型设计广告词 发型设计广告宣传语
- 盖屋的布局风水 盖房风水设计效果图
- 宝贝详情页设计思路及操作流程
- 装修名片标语大全图片 装修设计师名片标语
特别声明:本站内容均来自网友提供或互联网,仅供参考,请勿用于商业和其他非法用途。如果侵犯了您的权益请与我们联系,我们将在24小时内删除。
