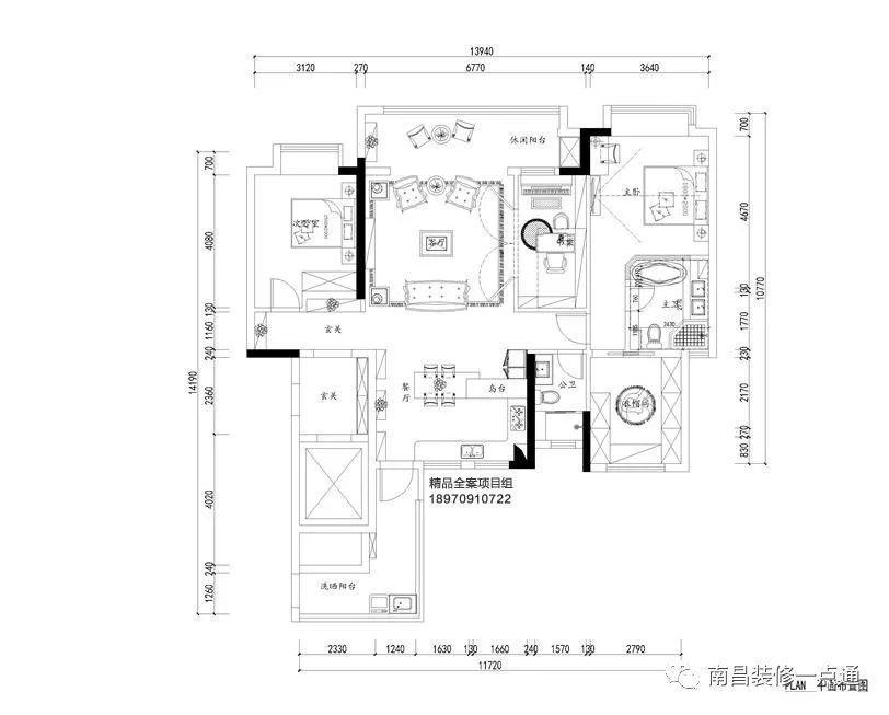
首發!輕奢+法式,綠地朝陽中心155平三居室,第一眼就美呆了

首發!輕奢+法式,綠地朝陽中心155平三居室,第一眼就美呆了

----首發!輕奢+法式 , 綠地朝陽中心155平三居室 , 第一眼就美呆了//----廣東龍網

首發!輕奢+法式,綠地朝陽中心155平三居室,第一眼就美呆了

----首發!輕奢+法式 , 綠地朝陽中心155平三居室 , 第一眼就美呆了//----廣東龍網

首發!輕奢+法式,綠地朝陽中心155平三居室,第一眼就美呆了

特别声明:本站内容均来自网友提供或互联网,仅供参考,请勿用于商业和其他非法用途。如果侵犯了您的权益请与我们联系,我们将在24小时内删除。