四居变开阔两居室,这样的空间改造,经典而精致

文章图片

文章图片

文章图片

文章图片

文章图片

文章图片

文章图片

文章图片
【四居变开阔两居室,这样的空间改造,经典而精致】

文章图片
四居变开阔两居室 , 这样的空间改造 , 经典而精致
天津是一个充满韵味和古典的城市 , 在这个城市生活也是一个不错的选择 。 不仅具有经典的名胜古迹 , 又具有各种风味小吃 , 十分幸福 。 270平方米的天津天津两居室面积宽敞 , 设计师巧妙的采用了现代简约始装修 , 将整个房子化繁为简 , 不需要过多的元素设计 , 便体现出了最为精致的现代艺术风 。
房屋户型:两室
房屋面积:270平方米
装修预算:50万
设计师:李文伟
主要建材:铁件、石材、人造石、系统柜、木作、油漆、玻璃、仿清水模漆
原本四居室的面积经过设计师合理的改造 , 变成两居室的房子 , 整个面积都变得充盈起来 , 采光性也得到了进一步的提升和改造 。 各空间一体化的制作让生活变得更为便捷 , 温馨感十足 , 巧妙的暖气色调搭配 , 让生活艺术感得到了进一步的升华 。
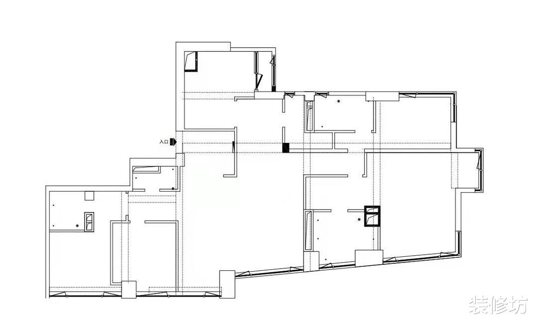
【户型图】
设计重点:打通改造
原本的户型图设计中 , 整体房子层次分明 。 各个空间中有明显的层次感 。 为了带来更好的空间充盈性设计 , 设计师决定对部分功能进行改造 , 合理的打通 , 能够创造出生活最大的价值 。
1空间一体化设计 。 将整体空间完全的打开 , 把空间变成两居室 , 这样的布置可以按整个空间得到进一步的升华 , 利用性也得到进一步的提升 。
2收纳设计巧妙的墙壁 , 利用小妙的柜台改造 , 让整体房子收纳性得到了一个进一步的统一 。
3卫生间改造 。 卫生间设计让整个空间变得更为充盈 。
【客厅】
设计重点:客餐连通
客厅和餐厅采用了联通式设计 。 这样的面积让整体布局更为宽敞 , 空间饱和性也得到了进一步的统一 。 从这个角度看 , 我们可以发现它的采光极佳 , 整个房子也有了更加明亮的选择 。
简单的大理石背景墙 , 黑色的液晶电视采用了嵌入放置 , 这样的布置很是节省空间 , 体现了现代设计之美 。 干净整洁的现代茶几旁边还有一个小巧的单人座椅 , 坐在这里聊天也是一个不错的生活选择 。
特别声明:本站内容均来自网友提供或互联网,仅供参考,请勿用于商业和其他非法用途。如果侵犯了您的权益请与我们联系,我们将在24小时内删除。
