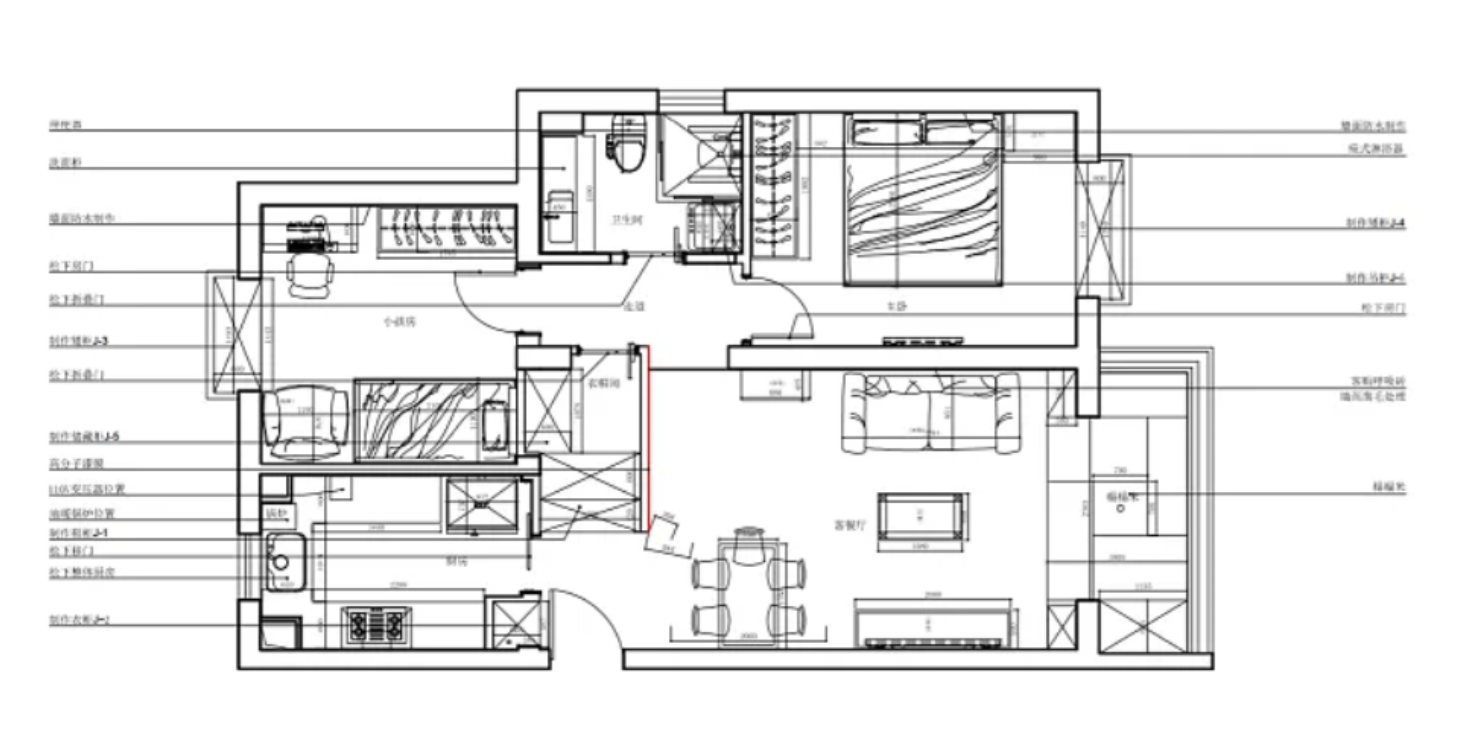
打通陽臺做改造,等于多出一間房!淋浴房坐著洗澡,太實用!曬曬

打通陽臺做改造,等于多出一間房!淋浴房坐著洗澡,太實用!曬曬

----打通陽臺做改造 , 等于多出一間房!淋浴房坐著洗澡 , 太實用!曬曬//----廣東龍網

打通陽臺做改造,等于多出一間房!淋浴房坐著洗澡,太實用!曬曬

----打通陽臺做改造 , 等于多出一間房!淋浴房坐著洗澡 , 太實用!曬曬//----廣東龍網

打通陽臺做改造,等于多出一間房!淋浴房坐著洗澡,太實用!曬曬

特别声明:本站内容均来自网友提供或互联网,仅供参考,请勿用于商业和其他非法用途。如果侵犯了您的权益请与我们联系,我们将在24小时内删除。