以黑色为主题的三居室,让生活回归本真,这么个性的家真美!

文章图片

文章图片

文章图片

文章图片

文章图片

文章图片

文章图片

文章图片
【以黑色为主题的三居室,让生活回归本真,这么个性的家真美!】

文章图片

文章图片

文章图片

文章图片

文章图片

文章图片

文章图片

文章图片
本案150平方米的三居室以现代简约的风格为主 , 家中的装饰没有过多的复杂元素 , 皆以简单的元素呈现出来 , 舍弃浮华 , 用最真实、最朴素的设计为家装增添新色彩 , 让生活回归于本真 , 色彩巧妙的划分出空间的区域 , 用实际性打造更加纯真的生活 。
以黑色为主题的三居室 , 让生活回归本真 , 这么个性的家真美!
房屋户型:三室
房屋面积:150平方米
装修预算:50万
所在城市:深圳
主要建材:铁件、石材、人造石、系统柜、木作、油漆、玻璃、仿清水模漆
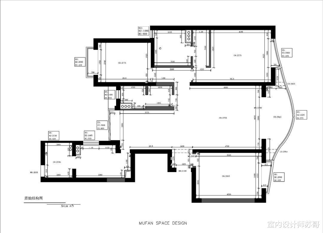
【户型图】
原始户型
对于原始的户型业主不是很满意 , 原有的儿童房的空间比较小 , 房间内不能设置独立的书桌、书柜 , 厨房的空间为长筒型 , 不能设置岛台 , 空间的狭小让家具上的增添多了很多麻烦 。
特别声明:本站内容均来自网友提供或互联网,仅供参考,请勿用于商业和其他非法用途。如果侵犯了您的权益请与我们联系,我们将在24小时内删除。
