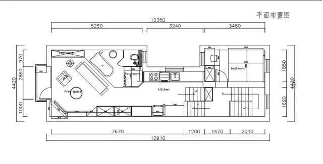
卫生间设计在客厅里,40平米老洋房花16万改造成这样了

卫生间设计在客厅里,40平米老洋房花16万改造成这样了

----卫生间设计在客厅里 , 40平米老洋房花16万改造成这样了//----

卫生间设计在客厅里,40平米老洋房花16万改造成这样了

----卫生间设计在客厅里 , 40平米老洋房花16万改造成这样了//----

卫生间设计在客厅里,40平米老洋房花16万改造成这样了

特别声明:本站内容均来自网友提供或互联网,仅供参考,请勿用于商业和其他非法用途。如果侵犯了您的权益请与我们联系,我们将在24小时内删除。