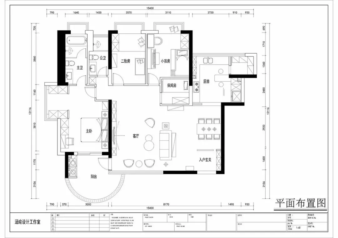
157平的混搭北欧风三居室,静雅文艺的品质生活

157平的混搭北欧风三居室,静雅文艺的品质生活

----157平的混搭北欧风三居室 , 静雅文艺的品质生活//----

157平的混搭北欧风三居室,静雅文艺的品质生活

----157平的混搭北欧风三居室 , 静雅文艺的品质生活//----

157平的混搭北欧风三居室,静雅文艺的品质生活

特别声明:本站内容均来自网友提供或互联网,仅供参考,请勿用于商业和其他非法用途。如果侵犯了您的权益请与我们联系,我们将在24小时内删除。