|200平的简约风复式,用黑白的素雅和实木的温润,塑造最真实的家

文章图片

文章图片

文章图片

文章图片

文章图片

文章图片

文章图片

文章图片
这个房屋是位于河源的一个200平复式楼房 , 房屋的主人是一对年轻的夫妻 , 男主人是一名医生 , 女主人则是一位护士 , 两个人的工作都比较忙 , 有的时候还会遇到很多心烦的事情 , 所以他们希望自己的家可以简单一点 , 可以去除那些不必要的装饰 , 就像两个人一样 , 结束了一天的工作可以卸下身上的疲惫和烦恼 , 回归到最真实的状态 , 一起享受在家做饭聊天的简单生活 , 为他们塑造一个最真实的家 。
200平的简约风复式 , 用黑白的素雅和实木的温润 , 塑造最真实的家
房屋户型:复式
房屋面积:200平方米
装修预算:50万元以上
所在城市:河源
设计师:李文伟
主要建材:大理石、木皮、灰镜、喷漆 、木地板件、玻璃、进口瓷砖、装饰板
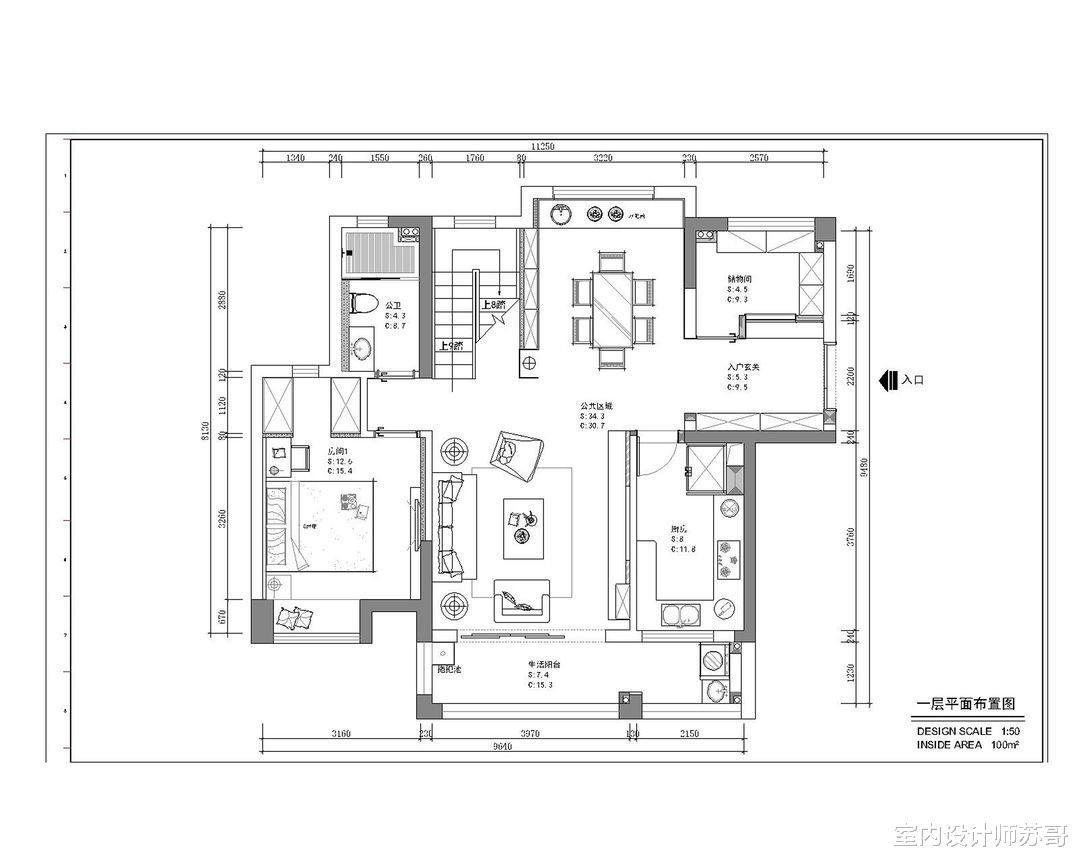
【户型图】
目前家里就只有业主夫妻两个人居住 , 另外业主的父母因为担心他们两个人的饮食不规律 , 有的时候会过来小住一段时间 , 所以家里装修的时候也为父母准备了房间 。 通过和业主的沟通 , 最后选择了简约风的设计 , 有黑白的素雅和实木的温润 , 来塑造一个真实的家 , 让业主可以回归到自己最真实最舒服的状态 , 放下顾虑享受属于自己的生活 。
【玄关】
设计重点:长虹玻璃做隔断
入户的玄关区域选择了定制的鞋柜 , 玄关的一侧是封闭式无拉手的鞋柜 , 完全可以满足一家人日常放置鞋子的需求 。
玄关的另一侧设计了一个底部悬空的换鞋凳 , 换鞋凳的后面的墙壁选择了打通之后换上长虹玻璃作为隔断的设计 , 保证了室内空间的通透和明亮 , 底部悬空的设计也方便放置一些拖鞋等物品 。
【厨房】
设计重点:灰色为主
厨房选择了灰色作为主色调 , 深灰色的地柜和浅灰色的吊柜结合在一起 , 满足实用性的同时让厨房空间更有层次感 , 厨房的地面瓷砖同样是灰色的款式 , 灰色为主设计的厨房平时使用起来更为方便 , 清理和打扫的时候也会更简单一些 。
【餐厅】
设计重点:窗边洗菜区
餐厅是很实用的设计 , 餐厅旁边设计了一个白色的餐边柜可以用来放置杂物 , 餐厅的另外一侧设计了实木的护墙板 。
餐厅靠近窗边的位置还设计了一个洗菜区 , 方便平时用来清洗水果和饭前洗手 。
【客厅】
设计重点:大面积留白
客厅也没有繁琐的装饰 , 适当的留白和温润的实木搭配在一起同样很简洁 , 没有装饰的电视背景墙 , 看着就很整洁 。
特别声明:本站内容均来自网友提供或互联网,仅供参考,请勿用于商业和其他非法用途。如果侵犯了您的权益请与我们联系,我们将在24小时内删除。
