|温馨又个性!33㎡的小屋十分有格调,现代风格之下展示别样之美

文章图片

文章图片

文章图片

文章图片

文章图片

现代人们的生活方式都发生了改变 , 人们的购房思维也发生了变化 , 这也是社会现状延伸出的情况 , 年轻人越来越多 , 也需要自己的独立空间了 , 奈何房价的问题 , 所以只能选择较小的房子 。
今天我们将要看到的案例就是一个33平米的小户型一居室 , 整体面积确实不大 , 但是却合理的划分出了客厅、卧室、厨房、卫生间等空间 , 规划的非常合理 , 不会感觉压抑或者沉闷 。
根据本期的装修案例 , 小编将着重和您聊聊如何运用色彩 , 让空间变得充满个性 , 希望本期介绍的装修案例 , 能够为您的装修起到帮助 。
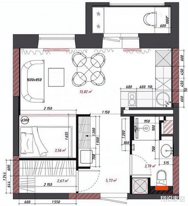
平面布局图
方方正正的房间框架 , 对于装修是很方便的 , 能够节约很多的空间 , 减少空间的浪费 。 能够发现 , 在玄关区域 , 设计师特意预留出了一个嵌入型的玄关柜 , 不要小看这个玄关柜 , 它解决了主人日常的梳妆问题 , 也间接节省了空间 。
玄关
进入玄关 , 空间的色彩层次感就被展现出来了 , 地面的图案和选色就比较别致 , 莫兰迪色系的灰蓝色让空间都变得高级起来了 , 搭配一侧的淡橙色墙壁和浅灰色隔断墙 , 让整体空间的色彩还产生了小小的碰撞感 , 非常有个性 。
【|温馨又个性!33㎡的小屋十分有格调,现代风格之下展示别样之美】外门内部的颜色和墙壁的色彩融合在了一起 , 感觉不会突兀 , 一转身就是我们刚才提到了多功能玄关柜 , 里侧是储物空间 , 外边是玄关镜 , 而对着玄关镜的外部则是一个小型的梳妆台 , 这样的设计让层次感得到突出 , 视觉上也得到了拉伸 。
在玄关外侧的地方 , 还有一处金属的置物架 , 金属的色泽典雅有质感 , 有微微的复古格调 , 降低了玄关处色彩的复杂程度 , 将色调拉低了许多 , 不仅有色彩的个性 , 还有质感和格调 。
客厅
客厅的色彩更是绚丽 , 中心临墙的区域放置了一个素粉色的沙发 , 后侧则是张贴了整墙的雨林图案画 , 色彩与层次感都由此得到了彰显 , 不仅拉伸了空间的感觉 , 还增强了空间的自由气氛 , 为空间营造了满满的自然气息 。
厨房
客厅的远处 , 在夹角处安排了厨房的空间 , 厨房是L型的 , 极大程度贴合了墙壁 , 增加了空间的使用面积 , 提高了空间利用率 , 并且在这个位置 , 厨房也不会造成较大的油渍侵袭 。 上下两侧都是灰蓝色的橱柜 , 中心则用白色的灶台隔开 , 层次感很足 , 而且整齐的线条感也加深了空间的科技风格 , 时尚又实用 。
餐厅
餐厅位于客厅和厨房之间 , 小小的桌子将两个空间进行了分割 , 桌子很有特点 , 是老式木质的圆桌 , 而四周却是4个艳红的餐椅 , “新旧”碰撞 , 提高了空间的个性 。
特别声明:本站内容均来自网友提供或互联网,仅供参考,请勿用于商业和其他非法用途。如果侵犯了您的权益请与我们联系,我们将在24小时内删除。
