【在选择厨房电器时,我们应该如何对厨房的插座进行规划?】④消毒柜1个
⑤微波炉1个
⑥电烤箱1个
⑦净水器1个
⑧热水器(小厨宝)1个
插座建议购买带开关的,省得每次电器用完都要拔 。

文章插图
厚匠提供专业的装修资讯,如果觉得对你有帮助,记得收藏&关注我们哦!
图片来源网络,如有侵权,请联系删除!
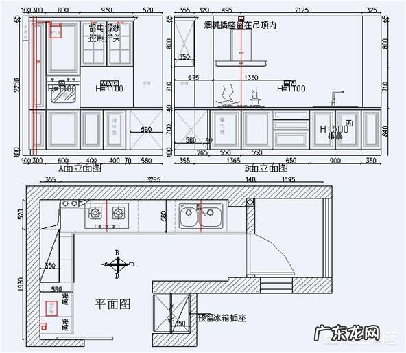
厨房插座1、先说下厨房基本需要的插座:
油烟机插座:这个一般在高位,所以是一个五孔插座即可 。
集成灶:集成灶插座 。根据集成灶电源线在其旁边设置插座 。
净水器插座:这个在厨房进水管道旁边,放置净水器的位置 。五孔插座
厨宝插座:这个在水槽下面靠边设置 。五孔插座
热水器插座:靠近热水器的安装位置设置 。煤气热水器一般在窗户旁边 。五孔插座
厨宝和热水器插座一般选择一个即可 。冰箱插座单从配电箱引一个,增加一个空气开关 。
其它电器类插座:洗碗机,消毒柜,都是嵌入式的在对应位置留好插座 。电饭煲,电饼铛,烤箱,榨汁机,电水壶等电器在橱柜地柜与吊柜之间安装9-12孔插座即可 。

文章插图
2、其它空余位置最好在每面墙留置一个可能用到的插座,备用将来的电器增加 。
3.首先应该设计规划好厨房的橱柜,然后根据各种电器的使用,储放位置进行插座的布置规划 。洗菜池下方,油烟机旁边,燃气灶下方,操作区中间,烤箱,嵌入式冰箱,微波炉的使用位置 。最好是提前设计好橱柜的样式,功能分区,电器位置,然后根据此来规划插座 。

文章插图
另外插座要尽量多留,以备增加电器,或者电路损坏时使用 。最好是每面墙都有设置插座,充分考虑到后期增加电器的使用 。下图中三个位置,从右至左,燃气热水器,洗衣机,电水壶 。

文章插图
在橱柜的主操作区,电器集中使用区,可以设置滑轨插座,方便使用 。

文章插图
不在灶台与烟机中间,附近设置插座 。水槽下插座靠边设置,不设置在水槽正下方,水管附近,且做防水插座 。
3、另外根据厨房的电器使用数量,设置电线,一般用4平方的插座电线即可,如果电器使用量大,可多设置一条回路 。
- 两夫妻在一起最重要的是什么?
- 最新银行利率表2022年大额存单 最新银行利息现在是多少钱一个月
- 吃太多荔枝影会响身体健康
- 威廉王子和哈里王子将再现肩并肩场景,一起走在女王棺柩后面
- 肢体语言专家:查尔斯精疲力竭,在苦苦挣扎,或被迫让位威廉王子
- 钢笔水漏到手上,查尔斯三世又不高兴了,“实在受不了……”
- 拼多多资金限制怎么回事?怎么避免?
- 拼趣多和拼多多哪个好?有啥区别?
- 你怎么看现在社会人与人的信任危机?
- 拼多多开网店怎么开?有哪些流程?
特别声明:本站内容均来自网友提供或互联网,仅供参考,请勿用于商业和其他非法用途。如果侵犯了您的权益请与我们联系,我们将在24小时内删除。
