|60平两室一厅,日式风格力求简洁,小户型也能很舒服

文章图片

文章图片

文章图片

文章图片

文章图片

文章图片

文章图片

文章图片

文章图片

文章图片

很多人对于老房子的装修都很头疼 , 尤其是小户型更觉得无从下手 , 其实主要是要按照房子本身的结构和房主的需求进行设计 。 本案是一个仅有60平的小户型 , 一家三口人生活 , 房子采光好是最大的优势 。 房主对设计要求不多 , 但是本身房子的储物空间不足 , 因此选择日式的装修风格 , 尽可能的把空间都利用起来 , 让房子在整个装修后更加敞亮 。
60平两室一厅 , 日式风格力求简洁 , 小户型也能很舒服
案例:日式装修风格
主要建材:橡木装饰、进口地砖、反光板材、灯饰等
居住成员:2成年人 , 1儿童
房屋面积:60平米
房屋类型:2室
预算:20~30万
城市:北京
设计师:陈大为
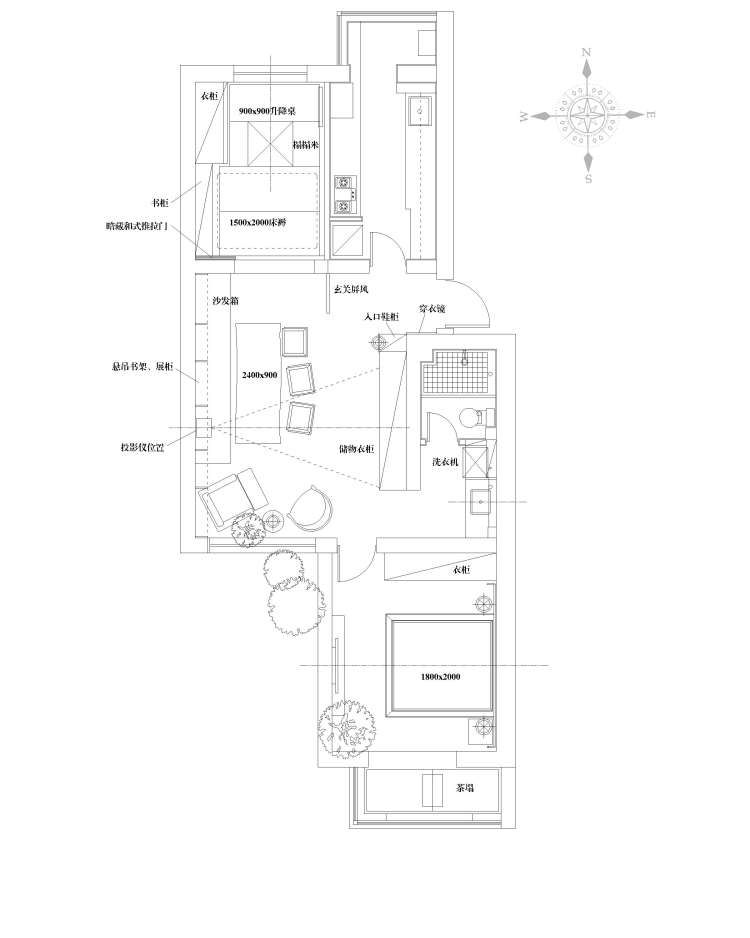
【户型图】
户型图显示房子很不规整 , 但是只要在装修上多做一些改动 , 可以让房子整个居住起来更加舒适 。 房子的北侧是儿童房和厨房 , 因为厨房空间较小 , 所以在装修的时候向外延伸了一些 , 这样给厨房让出的空间 , 可以做成橱柜方便厨房的收纳 。 另外 , 房子的客厅不大运用空间设计 , 让客厅在视觉上有开阔的感觉 , 基本上采用拉门和镂空装饰门 , 客厅不显得拥挤 。
【阳台】
设计重点:落地窗
改成落地窗后 , 发挥了房子采光好的的特点 , 将窗台延伸出来 , 平时可以坐在阳台上欣赏景色 , 品茶聊天 。
【卧室】
设计重点:东方情调
墙纸选择了很有东方美学感的画来装饰 , 和整体古朴的风格相得益彰 , 虽然主卧空间不大 , 但是温馨且有古韵 。
【儿童房】
设计重点:半开放式
儿童房整体做成了半开放式的榻榻米 , 中间有一个升降桌可以做为书桌使用 , 也可以用来待客 , 榻榻米一侧的大柜子很实用 。
【其他】
设计重点:日式元素
房子是日式风格 , 因此在家里的装修设计或者是摆设上 , 都用了一些日式的元素在其中 。
特别声明:本站内容均来自网友提供或互联网,仅供参考,请勿用于商业和其他非法用途。如果侵犯了您的权益请与我们联系,我们将在24小时内删除。
