晒晒上海买的40平小公寓,简单又温馨,终于在一线城市安家了
----晒晒上海买的40平小公寓 , 简单又温馨 , 终于在一线城市安家了//----
----晒晒上海买的40平小公寓 , 简单又温馨 , 终于在一线城市安家了//----
----晒晒上海买的40平小公寓 , 简单又温馨 , 终于在一线城市安家了//----
----晒晒上海买的40平小公寓 , 简单又温馨 , 终于在一线城市安家了//----
"multi_version":false
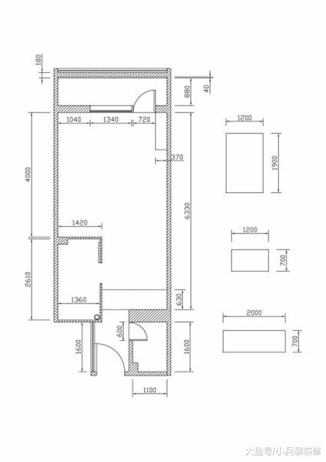
这套单身公寓40平套内面积 , 在上海这个一线城市里只能说是一个栖身之所 , 不过再小的房子也是五脏俱全的 , 花了十万装修了下 , 还是非常温馨的 , 下面给大家晒晒吧!
户型比较小 , 进门就是餐厅了 , 铺上好看的桌布 , 温馨满满;
书房、卧室一体的 , 每个功能区都有了;
阳台这边 , 全南的特别舒服 , 阳台主要是洗晒了;
多功能沙发 , 花了8000多买的 , 很舒服的 , 旁边是一个小冰箱;
沙发伸展开来很舒服 , 每天下班就躺上面享受一下;
厨房再小 , 但五脏俱全 , 周末的时候会买新鲜的食材回来 , 犒劳下自己的胃!
洗衣机也在厨房;
卫生间迷你的不要不要的 , 2平米都没有 , 但装修的很合理!大家喜欢我这套公寓的装修吗 , 喜欢点个赞吧!
户型图是这样的!
特别声明:本站内容均来自网友提供或互联网,仅供参考,请勿用于商业和其他非法用途。如果侵犯了您的权益请与我们联系,我们将在24小时内删除。
