|105平简欧三居室房,欧式设计融入黑白灰色带出不凡的空间感

文章图片

文章图片
【|105平简欧三居室房,欧式设计融入黑白灰色带出不凡的空间感】
文章图片

文章图片

105平米三居室的房子怎么装修才好看呢?简欧要花多少钱呢?让过来人告诉你 。 一起来看看这位业主是怎么花9万装修出105平米简欧三居室的 , 简直让人大开眼界!
客厅是日常生活中使用最频繁的空间 , 集会客、娱乐等多种功能于一体 , 客厅的装饰和客厅的设计可以反映出主人的家装品味 , 所以做装修的时候一定要好好考虑 。
浅灰的沙发过渡黑白的色调柔软的布料看着舒服极了
虽然是欧式的设计黑白灰色的融入却带出时尚不凡的空间感
欧式软包墙面用石材包边搭配墙面的镜片有欧式的气质也有现代的时尚
不需要装饰画两人的婚纱照就是客厅的亮点赤果果的晒幸福
卧室装修由于居住主体的不同配色也有所不同 。 主卧室装修宜采用木地板温馨惬意最合适 。 次卧一般是老人居住所以同样要温馨同时还要考虑老人的行动方便和喜好等 。 卧室的照明要求不多但要注意卧室不宜采用向下射的灯具宜用照顶的灯光 。
欧式的软包墙面与客厅同款彩虹色的床饰和玩偶更添温馨情调
餐厅无非就是一张餐桌 , 几把椅子 , 顶多再配上餐边柜、酒柜 , 但如果赋予不同的色调 , 餐厅立刻就活色生香起来啦!一个好的餐厅设计 , 会给生活带去更多快乐 , 拥有一个浪漫的用餐环境是一件很开心的事情 。
餐厅背景墙印着“love”的字样满满的温馨爱意流露在小小的餐厅
作为加工食物的地方 , 厨房常与油污为伴 , 好的厨房不仅功能齐备 , 也要注意整洁 。 厨房的设计要因地适宜 , 合理规划 , 如果空间过小 , 就要删减一些可有可无的需求了 。 最好最基础的设计 , 厨房一样让你称心如意 。
烤箱、冰箱等大型家电布置在了门口深入里面就饰女主人可以大展身手的烹饪区了
书房布置一般需保持相对的独立性 , 并配以相应的工作室家具设备 , 诸如电脑、绘图桌等 , 以满足使用要求 。 其设计应以舒适宁静为原则 , 特别是对干一些从事如美术、音乐、写作等的人来说 , 应以最大程度地方便其进行工作为出点 。 这样 , 才能营造一个学习工作的良好环境 。
为了充分实现榻榻米室的功能升降机的设计不仅方便日常的休闲娱乐降下升降机又可以化为一间卧室
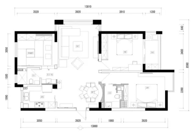
户型图
特别声明:本站内容均来自网友提供或互联网,仅供参考,请勿用于商业和其他非法用途。如果侵犯了您的权益请与我们联系,我们将在24小时内删除。
