|家居布置小细节

文章图片

文章图片

文章图片
【|家居布置小细节】
这个是我买房时售楼部的户型模型 。 初看到时很喜欢 , 也心心念念想了很多改造方案但是拿到户型图后就死心了 。
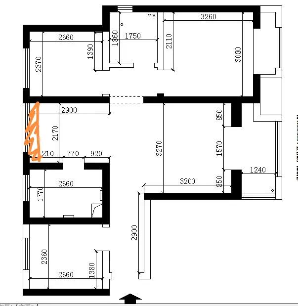
这个是我家的户型图 , 可以看到屋内的墙体大部分都为承重墙 , 房屋的基本格局没有办法动 , 那么只能从小细节来处理了 。
首先 , 进门处过长的过道是必须要处理的 , 而且由于过道较窄 , 右侧的墙体又是邻居的厨房墙体 , 没有办法砸 , 也没有办法掏 , 左侧的墙体是小次卧的墙体 , 而且强电箱在这里 , 所以也没有办法动 , 所以只能在右侧的墙体上装较窄的鞋柜 , 如翻斗柜 , 或者内部采用斜隔板 , 我家选择了斜隔板 。
同时 , 由于过道太长 , 影响采光 , 所以鞋柜采用了半墙设计 , 而没有采用通顶设计 , 这样没有太墙的压迫感 。 虽然是半墙 , 但由于过道长 , 所以鞋柜也长 , 我做了两米的鞋柜 , 收纳空间足够。 还留下一米空间在墙上布置一些挂钩 , 可以挂衣服 。
剩下就只有餐厅可以微调了 , 正好北阳台有半堵墙可以拆掉 , 纳入餐厅 。
由于餐厅比较小 , 所以我选择在窗边做了一组齐窗高的餐边柜 , 这样餐厅也比较方正 。
当然有的小伙伴选择把冰箱从厨房移出来 , 这样可以买双开门冰箱 , 同时厨房空间变大 , 而餐厅则在一侧做卡座 , 不过个人觉得还是略显拥挤 。
还有些小伙伴冒着风险把部分承重墙砸掉了 , 这样我是不推荐的 , 所以家里只是对细节进行了设计 , 也更适合自己的习惯 , 希望是小伙伴们有帮助 。
特别声明:本站内容均来自网友提供或互联网,仅供参考,请勿用于商业和其他非法用途。如果侵犯了您的权益请与我们联系,我们将在24小时内删除。
