2款带庭院的农村自建房,大堂屋火炕露台,这才是最宜居的乡村别墅
----2款带庭院的农村自建房 , 大堂屋火炕露台 , 这才是最宜居的乡村别墅//----
----2款带庭院的农村自建房 , 大堂屋火炕露台 , 这才是最宜居的乡村别墅//----
----2款带庭院的农村自建房 , 大堂屋火炕露台 , 这才是最宜居的乡村别墅//----
----2款带庭院的农村自建房 , 大堂屋火炕露台 , 这才是最宜居的乡村别墅//----
"multi_version":false
农村的生活并不需要很张扬 , 简单实用 , 就个小院子 , 父母儿女相聚一堂 , 这样才是最真实的幸福 。 建房子 , 有的农村富有 , 建起一栋栋豪华别墅 , 我们并不需要攀比 。 最宜居的乡村别墅 , 如下面这两款 , 外观无华 , 但功能齐全 , 大堂屋 , 火炕 , 大露台 , 院子有花有果 , 有菜 , 这样就很温暖了 。
EDITOR编号JZ044
占地尺寸:15.34m×14.24m
占地面积:205.84平方米
这款建筑在外观上整体风格为中式 , 采用的是灰色的屋顶 , 外立面为简约的灰白色调 , 结合平面布局 , 整体给人呈现出凹凸有致 , 变化丰富 。 建筑材料也是农村就地取材 , 底部基座为灰色的文化石 , 外墙为白色防水涂料 , 灰色的小面砖做装饰 , 灰色的金属栏杆加玻璃栏板 , 灰色的小青瓦 , 节能减废 , 美观大方 。
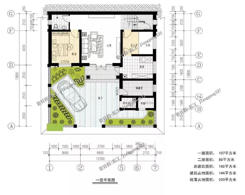
EDITOR编号JZ045
占地尺寸:12.3m×13.8m
占地面积:107平方米
这是一款复古风格农村建筑 , 设计结合场地的高差前后错落 , 高低搭配 。 平面布局延续了传统民居的主房、厢房结合的形式 。 设计有大堂屋 , 和北方的土炕和大露台等生活习惯 。 立面将传统农村的坡屋顶、气窗、砖砌花格等元素与现代农村别墅相结合 , 使传统建筑与现代农村生活完美相融 。
特别声明:本站内容均来自网友提供或互联网,仅供参考,请勿用于商业和其他非法用途。如果侵犯了您的权益请与我们联系,我们将在24小时内删除。
