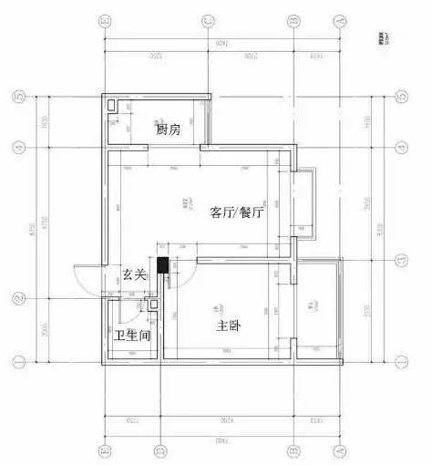
剩男为相亲买54㎡小户型,客厅缩小两倍,硬把一居室改造两室一厅!

剩男为相亲买54㎡小户型,客厅缩小两倍,硬把一居室改造两室一厅!

----剩男为相亲买54㎡小户型 , 客厅缩小两倍 , 硬把一居室改造两室一厅!//----

剩男为相亲买54㎡小户型,客厅缩小两倍,硬把一居室改造两室一厅!

----剩男为相亲买54㎡小户型 , 客厅缩小两倍 , 硬把一居室改造两室一厅!//----

剩男为相亲买54㎡小户型,客厅缩小两倍,硬把一居室改造两室一厅!

特别声明:本站内容均来自网友提供或互联网,仅供参考,请勿用于商业和其他非法用途。如果侵犯了您的权益请与我们联系,我们将在24小时内删除。