帅哥|28㎡北欧风lofl小公寓,清新淡雅功能俱全,一个人的生活简单美好!

文章图片

文章图片

文章图片

文章图片

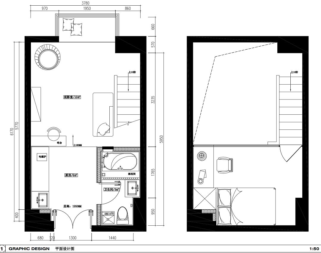
28㎡北欧风lofl小公寓 , 清新淡雅功能俱全 , 一个人的生活简单美好!迷你lofl单身小公寓在都市中也非常受年轻人的青睐 , 在空间布局上可以发挥更大的创意空间 。 今天小编就为大家分享一位单身小帅哥的lofl小公寓装修设计案例 , 是一套一层建筑面积28平米的单身公寓 , 而出做卧室 , 底部规划了厨房和卫生间 , 客餐厅挑高设计 , 定做了实木地台 , 让小公寓一点不显压抑 , 十分通透明亮 。
北欧风格装修简约清新 , 再搭配实木家具和原木色地板 , 更增添了温馨舒适的空间氛围 , 一个人简简单单的生活同样十分美好!
一二层平面布置图从上图可以看出 , 一层规划了客餐厨卫等公共功能区域;二层是卧室和工作区 , 整体空间家具不多 , 简洁舒适宽敞 。
厨房从一层入户门进入到玄关区域 , 左侧是卫生间 , 右侧是开放式厨房 , 定做了一排白色实木橱柜 , 并嵌入明黄色双门小冰箱 , 布局紧凑而时尚大气 , 简洁的橱柜储物空间宽敞 , 一个人住厨房用具和小厨电等并不多 , 橱柜现有空间足够用了 。
白色橱柜与白色长条形墙砖搭配 , 整洁清新明亮 , 灰色方形地砖方便打理 , 与室内地板形式自然区域划分 。
【帅哥|28㎡北欧风lofl小公寓,清新淡雅功能俱全,一个人的生活简单美好!】
餐厅厨房里侧是餐厅的位置 , 在加高地台上连接橱柜定做一个白色实木小吧台 , 搭配一把高脚椅 , 小帅哥平时一人在这里用餐温馨而有生活氛围 。 吧台里侧靠墙定做一排书架和储物柜 , 墙角摆放一个精致的地灯 , 方便在餐厅和书架旁工作阅读!
客厅餐厅对面是客厅的位置 , 客餐厅在同一个空间里 , 顶部保留原层高 , 更显宽敞明亮 。 小巧的浅灰色双人布艺沙发端庄沉稳 , 旁边放一盆高大的绿植盆栽 , 让清新的环境充满生机和人活力 , 舍弃茶几和电视、电视柜等让客餐厅有种“空无一物”的感觉 , 特敞亮!
楼梯沙发后侧三角形背景墙是通向二层卧室实木楼梯的扶手 , 旁边放一面换衣镜 , 方便整理仪容仪表 。
卧室二层卧室安装了玻璃内窗 , 保持通透 , 为室内提供自然采光 。 左侧凹槽内摆放一张简约轻盈 的实木大床 , 上面铺着清新舒适的床品 , 白色空间不显压抑 , 让睡眠氛围更静谧轻松自然舒适 。 右侧定做的实木大衣柜中规划出工作台 , 方便收纳衣物 , 也便于在卧室内安静地工作学习 。
卫生间
卫生间在进门右侧位置 , 靠客厅一侧安装了玻璃墙小内窗 , 让整洁时尚的卫浴空间更明亮清爽 。 帅哥喜欢泡澡 , 因此在淋浴区安装一个大浴缸 , 通过浴帘做了干湿分离 , 工作一天晚上睡前泡一个热水澡 , 也算是对自己的犒劳吧!
看过这个北欧风lofl小公寓的规划设计 , 不知你觉得怎么样呢?
特别声明:本站内容均来自网友提供或互联网,仅供参考,请勿用于商业和其他非法用途。如果侵犯了您的权益请与我们联系,我们将在24小时内删除。
