混搭|110㎡美式混搭风不讲究太过奢华,以舒适为主

文章图片

文章图片

文章图片
【混搭|110㎡美式混搭风不讲究太过奢华,以舒适为主】
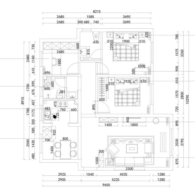
入户门进来以后左手边是餐厅 , 右手边为客厅 。 客厅右边有独立的阳台 , 用以晾衣通风 。 客厅餐厅都有较大窗户 , 整体通透 , 采光性好 , 分区明显 , 户型方正 。 厨房紧邻餐厅 , 面积大 , 考虑做U型厨房 , 采光性良好 。 共有三个卧室 , 考虑业主家人数不多 , 可以将一个卧室作为书房 , 每个卧室都有较大窗户 , 保障室内通风和采光性 。 房屋有两个卫生间 , 主卫较小 , 考虑便利因素 , 可以将主卫门改为朝向主卧开 。 次卫与书房相通 , 但是面积也不够大 , 考虑做成干湿分区 , 书房门可以向外开 , 更方便一些 。
客厅也叫起居室 , 是主人与客人会面的地方 , 也是房子的门面 。 客厅的摆设、颜色都能反映主人的性格、特点、眼光、个性等 。 客厅宜用浅色 , 让客人有耳目一新的感觉 。
客厅右边有独立的阳台 , 用以晾衣通风 , 搭配艺术气息浓重的几大幅挂画和留声机 , 整个空间的氛围就被营造出来了 。
客厅刷米黄色乳胶漆 , 优雅大气好搭配 , 湖蓝色色皮质沙发与实木茶几搭配起来意蕴悠长 。
卧室的装修以简单为主 , 尽力营造一个静谧、易于入睡的氛围 , 不相关的电器绝不入内 , 同时避免各种过于繁复的装饰 , 毕竟谁不想睡个好觉呢 。
主卧有一面墙是蒂芙尼蓝色 , 其他三面为浅蓝色 , 整体为达到业主要求有些偏地中海风 , 放置古典气息台灯与美式梳妆台 。
随着时代的变化 , 人们对卫生间设计有着极高的需求 , 卫生间设计规范也成为了一大重点 。 现在的卫生间设计讲究精益求精 , 空间改造更加完善、视觉上更加美观 。 下面这款卫生间设计案例 , 希望会对你们有所帮助!
与书房相通 , 但是面积也不够大 , 内部放置实木色浴室柜 , 外置做了干湿分区 , 更方便卫生 , 有效的保障了老人的使用需求 , 充分考虑老人的安全 。
餐厅是家居生活的心脏 , 不仅体现了美观 , 更体现了实用性 , 整体性 。 在布置餐厅的时候 , 可以使用木制的咖啡色餐桌 , 虽然表面看起来呆板 , 但是带来的效果却是非常生动的 , 简单的长方桌 , 条纹衣 , 让餐厅充满原始自然的味道 。
同色系餐桌和餐椅 , 和客厅相搭配 , 使用同样风格的铁艺美式吊灯 , 金属色为整个空间带来古典气息 , 厨房紧邻餐厅 , 面积大 , 考虑做U型厨房 , 采光性良好 。
书房是工作、学习和放松的地方 。 所以书房的设计 , 既要显得很宁静 , 也不能太乏味 。 一般家庭书房的空间不会很大 , 所以在设计书房的时候 , 就需要格外用心 , 要让书房发挥它最大的价值 。
放置大书柜和美式实木书桌椅 , 满柜图书为整个房间增添书香气 。 书房门可以向外开 , 使用起来会更方便一些 。
本案为三室两厅一厨两卫110㎡户型 , 业主为一位年轻女性 , 买房给父母住 , 为了满足父母的生活需求 , 在整体设计上 , 也不讲究太过奢华 , 以舒适为主 , 将风格定为美式混搭风格 。 整体面积大 , 户型方正 , 通透并且采光性好 。
特别声明:本站内容均来自网友提供或互联网,仅供参考,请勿用于商业和其他非法用途。如果侵犯了您的权益请与我们联系,我们将在24小时内删除。
