退休|精致复古的老洋房,用心独特的室内设计,处处体现业主的气质

文章图片

文章图片

文章图片

文章图片

文章图片

文章图片

文章图片

今天的这个装修案例是位于上海老城区的一个精致复古的老式洋房 , 光是房屋外部的建筑设计就让人看过之后十分的喜欢 , 每一处都彰显着怀旧的风情体现着老上海的文化气息 , 而业主夫妇也是看着就很有气质的人 , 两个人也快要退休了 , 平时大部分的时间都是住在单位附近的房子里面 , 现在也是决定在退休之前对这个老房子重新装修一下 , 等退休之后可以安静的在这里享受生活 。 精致复古的老洋房加上用心独特的室内设计 , 处处体现着业主的气质 。
精致复古的老洋房 , 用心独特的室内设计 , 处处体现业主的气质
房屋户型:四室
房屋面积:270平方米
装修预算:50万元以上
所在城市:上海
设计师:赵雅雯
主要建材:烤漆、旧米黄大理石、灰镜、黑镜、壁纸、皮革
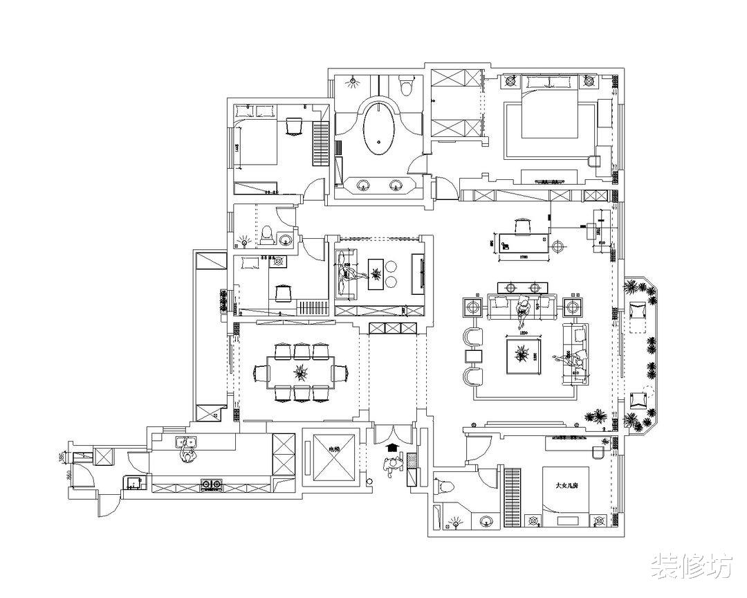
【户型图】
房屋的户型还是比较规整合理的 , 这个房子也算是一个老房子了 , 不过周边的环境还是很好房屋整体保持得也很好 , 只需要更换一下房屋内部的软装设计就可以重新入住了 , 业主夫妇也是希望退休之后可以回到这个自己熟悉的环境当中 , 劳碌了那么多年退休之后也应该开始享受属于两个人的幸福时光了 , 重新装修让生活更加的舒适 。
【客厅】
设计亮点:清新霸气
客厅选择了很多大理石的元素 , 光滑的大理石在给人带来一种清凉感觉的同时也透露出一种霸气的感觉 , 为了不让客厅在大理石的衬托下显得过于冰冷 , 客厅的家具大部分选择了暖色调 , 卡其和墨绿色为客厅增添了一些温度 , 让人感觉更加的舒适 。
适当的中式元素也成为客厅的一个亮点 , 实木的茶几和座椅 , 温暖又不失时尚 , 为客厅增添了不一样的色彩 , 也是业主夫妇最喜欢的一处设计 。
客厅沙发的后面还设计了一个开放式的书房 , 等搬过来摆放上书籍之后就要比现代还有韵味了 , 平时读书休息的时候也更方便 , 两个人退休之后也不需要在家里处理工作了 , 开放式的书房还增加了书房和客厅之间的互动 。
【餐厅】
设计亮点:水墨元素
餐厅的座椅和墙壁都带有水墨的元素 , 营造了一个温和富有韵味的用餐空间 , 让一日三餐都变成一种享受 。
【卧室】
设计亮点:添加绿色元素
卧室用清新的绿色打造了层次递进的空间感 , 清新淡雅的布艺加上舒适的皮质设计 , 打造了优雅舒适的卧室空间 , 实木元素的加入让卧室更加的安稳沉静 。
特别声明:本站内容均来自网友提供或互联网,仅供参考,请勿用于商业和其他非法用途。如果侵犯了您的权益请与我们联系,我们将在24小时内删除。
