|这个人装修太聪明,将次卧变成工作室,打通空间增强采光,超实用

文章图片

文章图片

文章图片

文章图片

文章图片

文章图片

文章图片

文章图片
今天齐家云云分享的这个房屋主人是一对从事着淘宝小店的夫妻 , 男主人也有自己的工作 , 小店主要是女主人在负责 , 两个人也算是自己创业慢慢地打拼出了一些成绩 , 现在买了房子之后也终于在异地有了自己的小家 , 虽然不是很大却也让两个人在这个城市站稳了脚步 。 为了方便日常的工作 , 家里的次卧兼顾了工作室和休息空间 , 方便日常处理小店的工作 , 打通了多余的空间来增强采光 , 美观大气更实用 。
房屋户型:三室
房屋面积:85平方米
装修预算:10到20万元
所在城市:佛山
主要材料:大理石、木作、玻璃、铁件、软件配件等
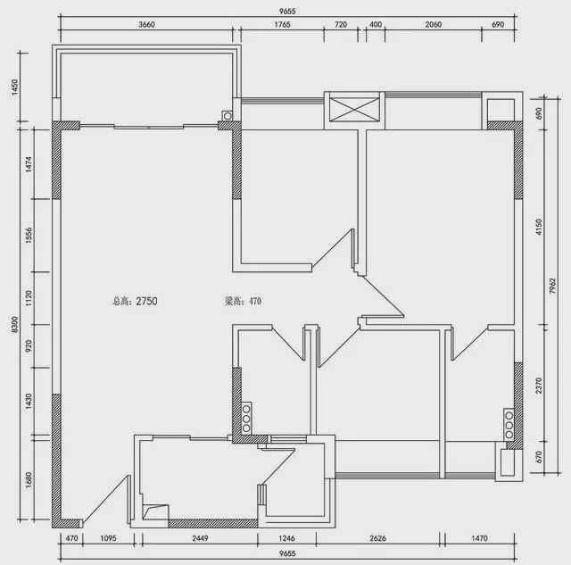
【户型图】
房屋的面积并不是很大 , 不过整体的结构还可以 , 装修的时候也很方便 , 为了方便业主日常的工作和生活 , 家里还设计了一个小的工作室 , 房间的风格比较简约 , 但还是添加了一些亮丽的颜色来装饰空间 , 毕竟是年轻人的家还是要有活力一些 。
【玄关】
设计亮点:悬空鞋柜
玄关的位置设计了一个到顶的鞋柜可以放置很多物品 , 鞋柜的底部是特意设计了悬空的风格 , 方便放置一些拖鞋也可以起到防潮的作用 , 鞋柜旁边还设计了一个换鞋凳和挂衣服的区域 。
【客厅】
设计亮点:橙色沙发
客厅选择了橙色的皮质沙发和拼色的窗帘 , 让空间变得有活力一些 , 年轻人的家里可以简洁大方但同时也需要一些亮丽的色彩作为装饰 , 过于沉闷也会让人觉得不舒服 。
客厅选择了大理石的电视背景墙和地砖形成了一种统一 , 电视柜的两侧还设计了储物柜可以用来放置一些摆件 。
【餐厅】
设计亮点:大理石纹理
餐厅选择了大理石纹理的餐桌和布艺的座椅 , 简洁大方的餐桌搭配柔软舒适的座椅 , 吃饭的时候也会觉得更舒服一些 。
餐厅顶部是实木的天花板设计 , 和侧面的柜子融为一体 , 同时也成为了玄关和客厅之间一个独立的区域 , 让餐厅和客厅分开 。
【卫生间】
设计亮点:加长镜柜
卫生间选择了一个加长的镜柜 , 既可以增加卫生间的储物空间 , 也在视觉上延长了卫生间的空间 , 看起来更加通透大气一些 。
【卧室】
设计亮点:高级灰配色
卧室选择了高级灰的配色 , 墙面、床铺和地面瓷砖都是过渡的高级灰 , 看起来更加舒适静谧 。
【|这个人装修太聪明,将次卧变成工作室,打通空间增强采光,超实用】
特别声明:本站内容均来自网友提供或互联网,仅供参考,请勿用于商业和其他非法用途。如果侵犯了您的权益请与我们联系,我们将在24小时内删除。
