|150㎡的新房,她坚持给全房铺地砖,完工后,才知道有多实用

文章图片

文章图片

文章图片

文章图片

文章图片

文章图片
说到给全房铺地砖这个处理 , 在装修中虽然也有 , 但非常少见 。 而原因无非有以下两点 , 一是地砖会给人一种冷冰冰的感受 , 影响居住舒适性;二是地砖的材质太硬 , 不仅会影响脚感体验 , 在家里有小孩子的情况下 , 还容易发生摔伤等情况 。 因此 , 最常见的地面处理 , 都是客餐厅以地砖为主 , 卧室以木地板为主 。
不过本期带来的这套案例 , 却恰恰给全房都铺上了地砖 , 哪怕家人和朋友不太看好 , 屋主也坚持了自己的选择 。 虽说这种做法比较少见 , 但当新房完工后 , 才知道有多实用 。
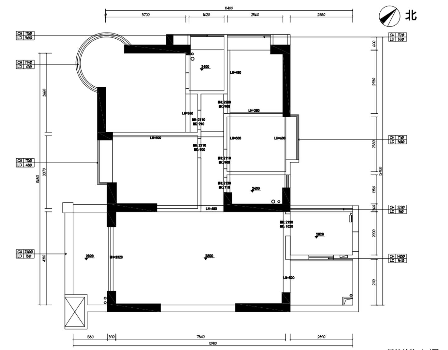
原始结构图
本案坐标广州 , 建面150㎡ , 四室两厅两卫的格局 , 屋主一家五口 。 原空间结构相当工整 , 几乎不存在空间浪费的情况 。 唯一让屋主难以接受的 , 就是主卧卫生间正好对着床 , 所以在空间设计上 , 也希望能将这个问题给处理掉 。
而之所以要坚持全房铺地砖 , 也是从生活的角度来考虑的 。 因为在家里有五口人的情况下 , 难免会增加清理卫生时的工作量 。 再加上地砖本身就有耐磨的特性 , 所以在后期生活中 , 也会相对省心一点 。
平面方案图
考虑到原空间格局非常工整 , 所以在空间设计上 , 仅做了部分调整 。
1、将玄关区与厨房之间的窗户扩大 , 以提高空间的通透性 。 同时 , 在玄关与餐厅之间的垭口处增加移门隔断 , 实现开合有度的空间结构 。
2、将南边次卧的墙体拆掉 , 并用柜子来隔断 , 来弱化过道的狭长 。
3、以45度的方式来调整主卫生间门洞 , 以避开门对床的尴尬 。
玄关
地面满铺地砖 , 墙面刷上白色的乳胶漆 , 从玄关的处理就能看出 , 整个空间是以实用性来定位的 。 不过为了让入户更有仪式感 , 顶部的暗藏灯光设计 , 也算是点睛之笔 , 既起到了烘托空间气氛的作用 , 又打破了大平顶的单调 。
在空间布局上 , 也再次凸显出了实用性 。 比如临窗设计的矮柜 , 以及入户门旁边的高柜设计 , 不仅充分利用了空间 , 也丝毫不影响空间的采光 。 而将厨房窗户扩大 , 也最大化让空间做到了贯通 。
餐厅
餐厅增加餐边柜功能 , 可以解决一些日常用品的收纳需求 , 并且还让冰箱做到了内嵌 , 使空间看起来更加工整 。 当然 , 该餐边柜还兼具了部分西厨操作的需求 。 而岩板饰面的餐桌 , 则巧妙与空间基调融为了一体 , 且看起来很有质感 。
客厅
客厅依然以简约实用为主 , 电视墙不做任何造型 , 直接以悬挂的方式安装上抽屉柜 , 既带来了轻盈的视觉感 , 又带来了大量的收纳功能 。 而为了让空间看起来更加饱满丰富 , 沙发墙则以外凸的造型设计了一块背景墙 , 再通过暖色灯光衬托 , 完美在冷暖间做到了平衡 。
特别声明:本站内容均来自网友提供或互联网,仅供参考,请勿用于商业和其他非法用途。如果侵犯了您的权益请与我们联系,我们将在24小时内删除。
