设计师|她在56㎡复式户型中加入旋转楼梯,空间婉转像迷宫,效果太惊艳

文章图片

文章图片

文章图片

文章图片

文章图片

文章图片

文章图片

文章图片

文章图片

文章图片

你们对自己新房的装修有没有什么特别想实现的设计 , 我想肯定有很多女生都希望能够有一个独立衣帽间 , 还有不少女生会希望能有一个浴缸实现“泡澡梦” 。
而本期要介绍的女主 , 她所坚持的却是在玄关处加一个“圆洞” , 起初家人都不理解 , 没想到入住之后才发现这个“圆洞”别有妙用 。
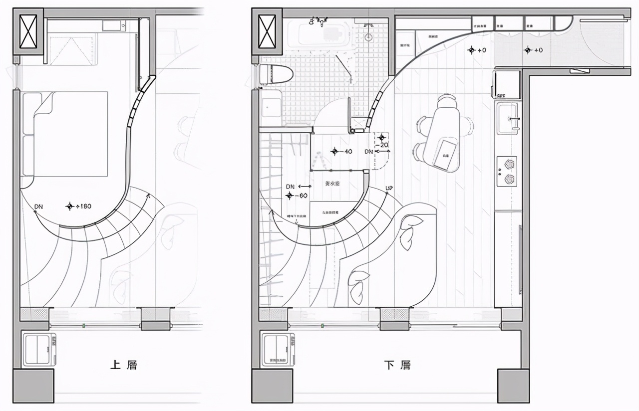
平面布置图
设计亮点提前看:
- 玄关大面积落地镜 , 视觉上拓宽空间
- 玄关处设计一“圆洞” , 是专门为猫咪设置的猫砂盆独立间
- 开放式餐厨区 , 多功能中岛设计
- 旋转楼梯 , 安全防滑 , 空间婉转像迷宫
- “浴室、化妆区、更衣区”动线连贯 , 十分方便
整个玄关减掉了色彩 , 减掉了饰物 , 只剩下了灰 。 左侧是一大面的落地镜 , 右侧则是整墙的收纳鞋柜 。 一边增加玄关处收纳储物空间的同时 , 另一边又利用镜子让玄关更加通透别致 , 视觉效果上更空阔 。
玄关独特的弧形柜体设计 , 与混凝土地面巧妙融合 。 搭配上完美的层高 , 整个玄关更显轻灵、出挑 , 这就是属于业主自己最独特的风格 。
弧形收纳柜并不是刻意为之 , 而是根据户型结构就势而做 。 顺着弧线柜体的方向往室内走 , 前方墙面上出现一圆洞 , 这便是女主人坚持要做的设计:这是一个专门为猫咪设置的猫砂盆独立间 。 “圆洞”靠近地面 , 猫咪可以随时进出 , 使用非常方便 。
餐厨区
由于空间限制 , 餐厨区采取了开放式设计 , 却意外凸显高级气质 。 多功能的中岛设计既可以充当餐桌及水吧台;又能承担一部分料理的功能 。
见过餐厨一体设计 , 也见过客餐厅联通 , 但没想到的是 , 设计师却将橱柜与电视柜相连 , 未免有点脑洞大开 。
但尽管功能大相庭径 , 统一的壁面材质却让空间十分和谐 , 自然的过渡让两个不同功能空间的分割若有若无 。
厨房由于使用特性的关系 , 材质多要采用防水防油以及方便清洁 。 女主采用的是金属镀钛质材台面 , 十分耐磨;立面则用了十分便于打理的金属砖 。
特别声明:本站内容均来自网友提供或互联网,仅供参考,请勿用于商业和其他非法用途。如果侵犯了您的权益请与我们联系,我们将在24小时内删除。
