|只需局部的改造和装饰,就可以改变精装房的设计,让家更具高级感

文章图片

文章图片

文章图片

文章图片

文章图片

文章图片

文章图片

文章图片

文章图片
今天和大家分享的这个案例也是一个精装房的改造设计 , 业主希望在尽量不改变房屋整体结构的基础之上对房屋做出一些调整 , 通过局部的改造和装饰来改变精装房的设计 , 使其更适合我们的日常生活 , 不需要太多的改动就可以让家里变得更加高级精致 。 对于新家来说不仅需要满足日常的生活需求 , 还要兼顾美观性 , 为自己和家人创建一个更好的生活环境 , 让家变得更具高级感 。
只需局部的改造和装饰 , 就可以改变精装房的设计 , 让家更具高级感
房屋户型:三室
房屋面积:137平方米
装修预算:30到50万元
所在城市:成都
设计师:杨玉清
主要建材:抛光石英砖、美耐板、茶色玻璃、茶镜、黑镜、壁纸、白橡木木皮、柚木地板、仿皮壁布
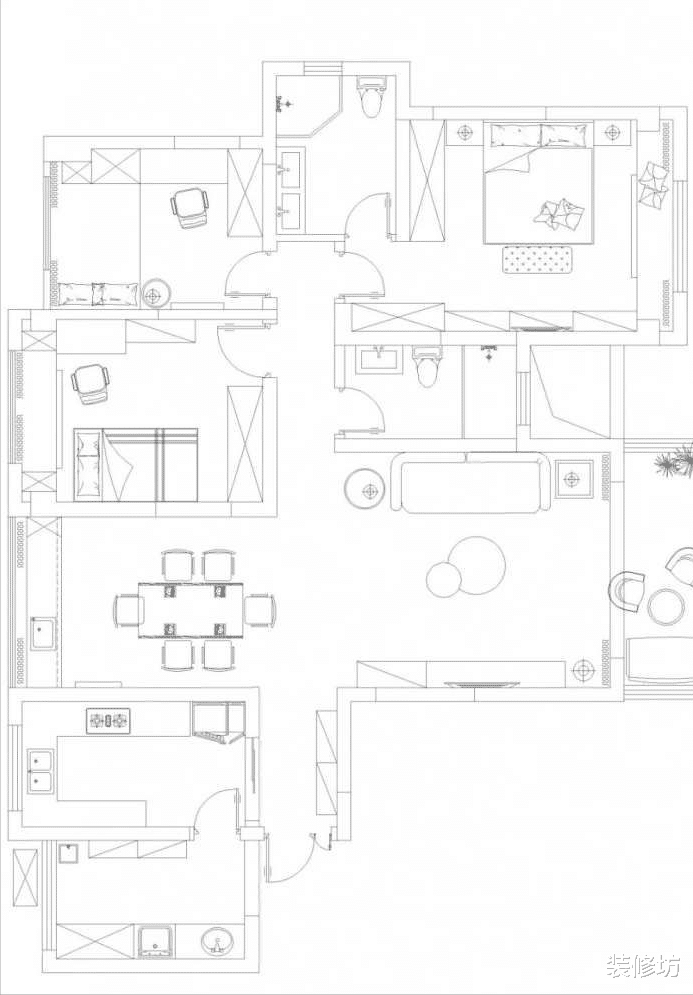
【户型图】
房屋的户型很方正 , 属于一个精装房 , 在不改变原始格局和基本硬装的基础上对房屋做出一些调整设计 , 一方面让家里更加美观大方 , 另一方面增加了家里的储物空间 , 让每一个房间的布局都更加合理 , 打造一个舒适大气的居住空间 。
【玄关】
设计亮点:底部悬空的鞋柜
入户的玄关处选择了深灰色的鞋柜 , 底部悬空的鞋柜可以避免让鞋柜里面会变得潮湿 , 同时鞋柜的底部还可以用来放置一些拖鞋 , 清理和打扫的时候也会更方便一些 完美贴合业主日常的生活习惯 , 并增设了一个铜镜来折射玄关的空间 , 让玄关的位置变得更加开阔大气 。
【客厅】
设计亮点:无主灯设计
玄关的位置选择了无主灯的设计来简化空间 , 并通过射灯来达到照明的效果 , 简约的钓鱼灯不仅可以辅助照明还可以让客厅变得更具层次感 , 提升了整个家庭的格调 。
客厅的电视背景墙选择了和玄关的位置同一个风格的木地板上墙设计 , 让两个空间互相呼应更具整体感 , 通过白色的线条来装饰墙壁 , 简洁当中更具设计感 , 搭配灰色的沙发和黑色的座椅 , 简洁大方更加实用 。
【餐厅】
设计亮点:窗边咖啡区
业主平时很喜欢喝咖啡 , 所以在餐厅靠近窗边的位置还设计了一个小型的的咖啡区 , 同时也增加了餐厅的储物空间 。
【|只需局部的改造和装饰,就可以改变精装房的设计,让家更具高级感】
特别声明:本站内容均来自网友提供或互联网,仅供参考,请勿用于商业和其他非法用途。如果侵犯了您的权益请与我们联系,我们将在24小时内删除。
