|农村建一栋二层小户型的别墅只花12万就行?建完果然没让我失望!

文章图片

文章图片
大部分有建房想法的朋友们最担心的问题就是造价 , 担心资金不够 , 毕竟都是大家的辛苦血汗钱 , 所以得花在刀刃上 。 当然也有土豪是不在乎钱的问题 , 这就另当别论了 。
今天要给大家介绍的一款农村别墅户型图则是二层小户型洋房 , 毛坯主体造价竟仅12万就可以建好?实用性超高 , 物有所值才适合大家!
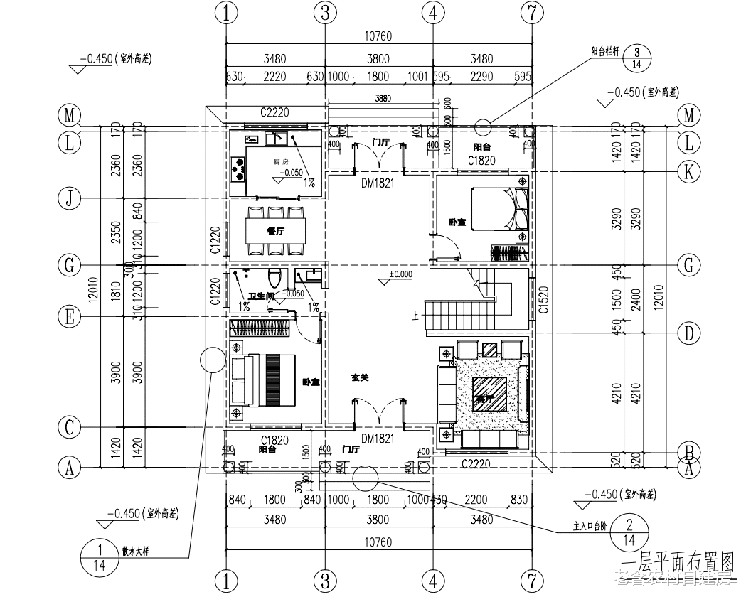
我们先了解一下这套别墅的基本参数 , 开间进深:10.76*12米 , 占地面积约为120平方米 , 整体架构采用的是砖混结构 。
这款别墅偏现代风格 , 时尚简约大气 , 不仅符合老年人的需求 , 同时年轻人也喜欢这样的风格 。 外墙面上半段是米白色的真石漆 , 下半段则是砖红色的仿砖石 , 色彩搭配温馨舒适 。 门厅前的门廊与二层的休闲阳台 , 使得整体层次分明 , 设计感十足!外表好看的房子不一定就代表是最合适的 , 室内布局的设计同样非常重要!
一层设计图:
入门之后则是玄关 , 右边则是休闲客厅 , 面积大 。 厨房与餐厅相连在整体的西北面 。 一层设计了两间卧室 , 一间可以作为客房 , 一间可以做老人房 。
二层设计图:
上到二层之后 , 共设计了四间卧室 , 两个卫生间 , 这些卧室数量的设计基本能够满足大部分家庭的需求了 。 同时还设计看一间安静舒适的书房 , 为孩子们提供一个良好的学习环境 。
【|农村建一栋二层小户型的别墅只花12万就行?建完果然没让我失望!】这套别墅共6间卧室 , 实用性超高 , 最主要主体造价低 , 性价比也高 , 非常适合在农村建 。
特别声明:本站内容均来自网友提供或互联网,仅供参考,请勿用于商业和其他非法用途。如果侵犯了您的权益请与我们联系,我们将在24小时内删除。
