设计师|采光不好不要再砸墙了,巧用玻璃房,点亮整个家的光线

文章图片

文章图片

文章图片

文章图片

文章图片

今天和大家分享的是一对新婚小夫妻的新家 , 两个人都是很好说话很随和的人 , 从大学的时候就在一起也是一起携手走过了很多的风风雨雨 , 对于新家两个人也是充满了期待 , 不过作为在异地打拼的两个年轻人来说买一套房子也不是一件很容易的事情 , 自然也是会遇到一些不如意的地方 。 这套房屋整体还是比较规整合理的 , 唯一的问题就是房屋内部的采光不是很好 , 一般遇到这样的问题大家都会想到通过砸墙的方式来增强光线 , 而这次设计师却是用了另外一个方法来解决室内的采光问题 , 巧用玻璃房点亮了整个家的光线 。
采光不好不要再砸墙了 , 巧用玻璃房 , 点亮整个家的光线
房屋户型:三室
房屋面积:96平方米
装修预算:20到30万元
所在城市:福州
设计师:李一凡
主要建材:木皮、石材、硅藻泥、壁布、大理石
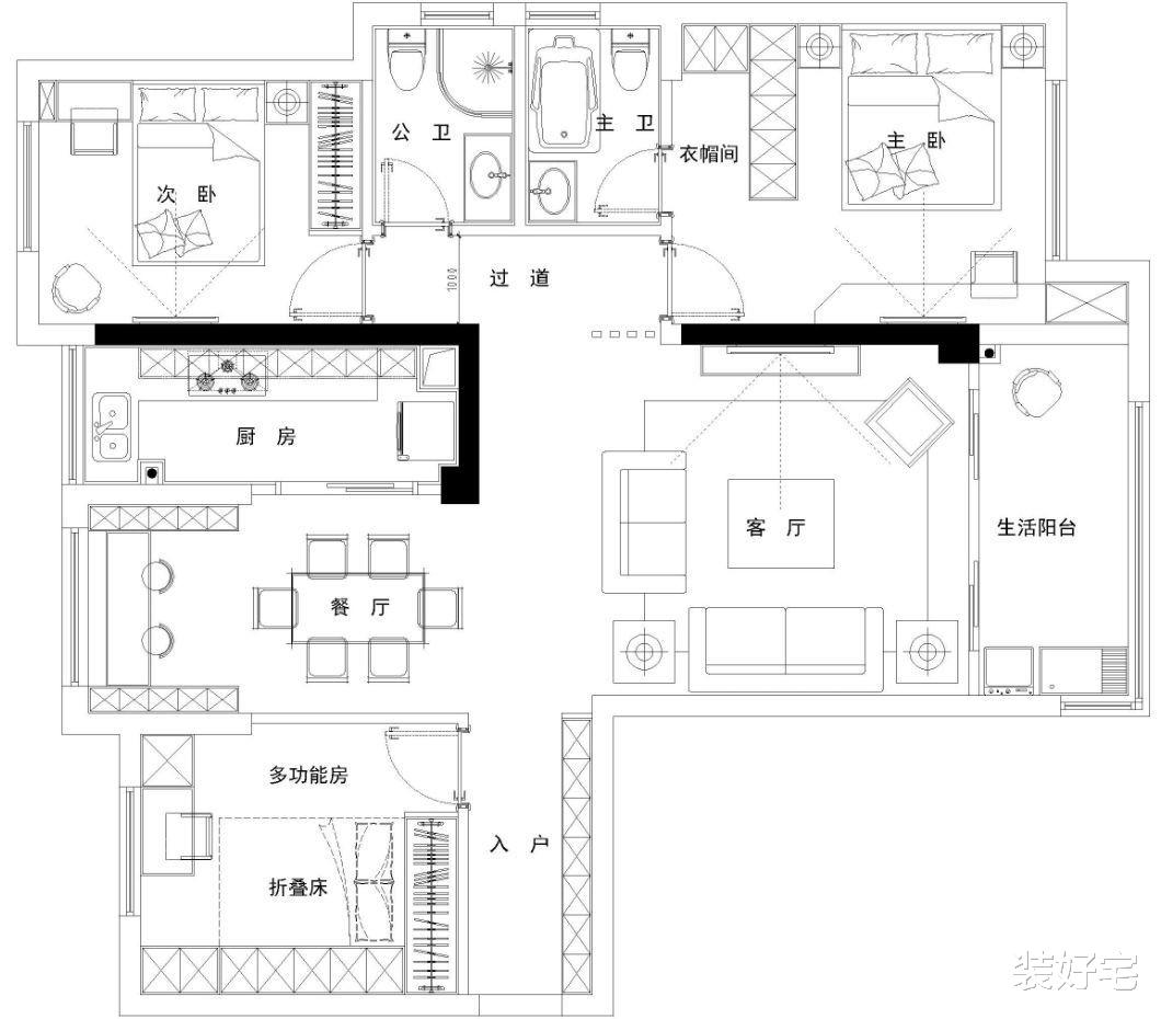
【户型图】
这个房屋的户型结构还是很规整的 , 房屋内部不需要太多的调整 , 唯一的问题就是房间里面的采光不是很好 , 之前遇到这样的问题时设计师都会通过砸墙的方式来增强室内的光线 , 不过这次设计师却是选择用玻璃房来增强室内的光线 , 不仅增强了室内的光线还很美观 。
【设计师|采光不好不要再砸墙了,巧用玻璃房,点亮整个家的光线】
【玄关】
设计重点:定制鞋柜
入户的玄关处选择了定制的鞋柜 , 鞋柜的下方可以用来放置鞋子 , 还设计了一个换鞋凳和挂衣服的区域 , 玄关上方的位置则是贴着屋顶设计了储物柜增加了家里的收纳空间 , 同时不会阻挡光线 , 中间镂空的部分还可以用来摆放一些小摆件 , 鞋柜转角的位置设计了置物架达到了美观的效果 。
【客厅】
设计重点:清新简洁
客厅的位置选择了比较简单大方的北欧风格 , 无主灯的设计让客厅的视线变得更好 , 业主希望家里可以简单一些但又不想要只有黑白灰的色调 , 所以就在客厅加入了实木的元素 , 构成了简洁清新的客厅空间 。
【餐厅】
设计重点:窗边吧台工作区
餐厅选择了简单的实木桌椅和铁艺的吊灯 , 餐厅对着一扇落地窗 , 装修的时候也是没有浪费这个亮点 , 依靠窗户的位置设计了一个吧台作为临时的工作区和休闲区 , 还可以一起看着风景品尝下午茶 。
【卫生间】
设计重点:金属圆形照明镜
卫生间的设计也比较简单 , 将淋浴和浴缸结合在一起 , 方便日常的使用 。
【卧室】
设计重点:高级灰的墙壁
卧室选择了高级灰的墙壁搭配白色的屋顶和实木的地板 , 简洁大方的设计也可以让人十分的舒适 。
【书房】
设计重点:玻璃房设计
特别声明:本站内容均来自网友提供或互联网,仅供参考,请勿用于商业和其他非法用途。如果侵犯了您的权益请与我们联系,我们将在24小时内删除。
