房屋设计|8米x13米房屋设计图纸

文章图片

文章图片

文章图片

文章图片
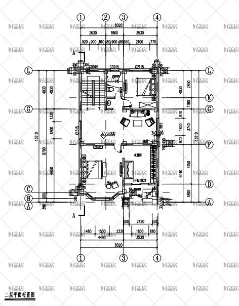
农村自建房屋是基于自己的喜好和要求 , 所以需要更加细致和完善 。 低价别墅认为面积不够 。 那些面积足够大的人认为价格太高 , 或者很难看上一种房子类型 , 但农村面积不匹配 , 所以很难批准 。 以下这款欧式别墅设计图纸开进8米 , 进深13.8米 , 外观是欧式风格的 , 带有露台设计 。
【房屋设计|8米x13米房屋设计图纸】
特别声明:本站内容均来自网友提供或互联网,仅供参考,请勿用于商业和其他非法用途。如果侵犯了您的权益请与我们联系,我们将在24小时内删除。
