|她买下48㎡小公寓,将墙全拆除,用玻璃做隔断,美翻

文章图片

文章图片

文章图片

文章图片

文章图片

文章图片

文章图片

二十几岁的上班一族 , 买下48㎡的公寓 , 在奋斗的日子里 , 她虽然已经实现经济独立 , 但她说还是要尽可能的节省一些 。 女孩说:“可以拥有属于自己的小屋就很满足啦!可以不用特别高级 , 但要实用美观 。
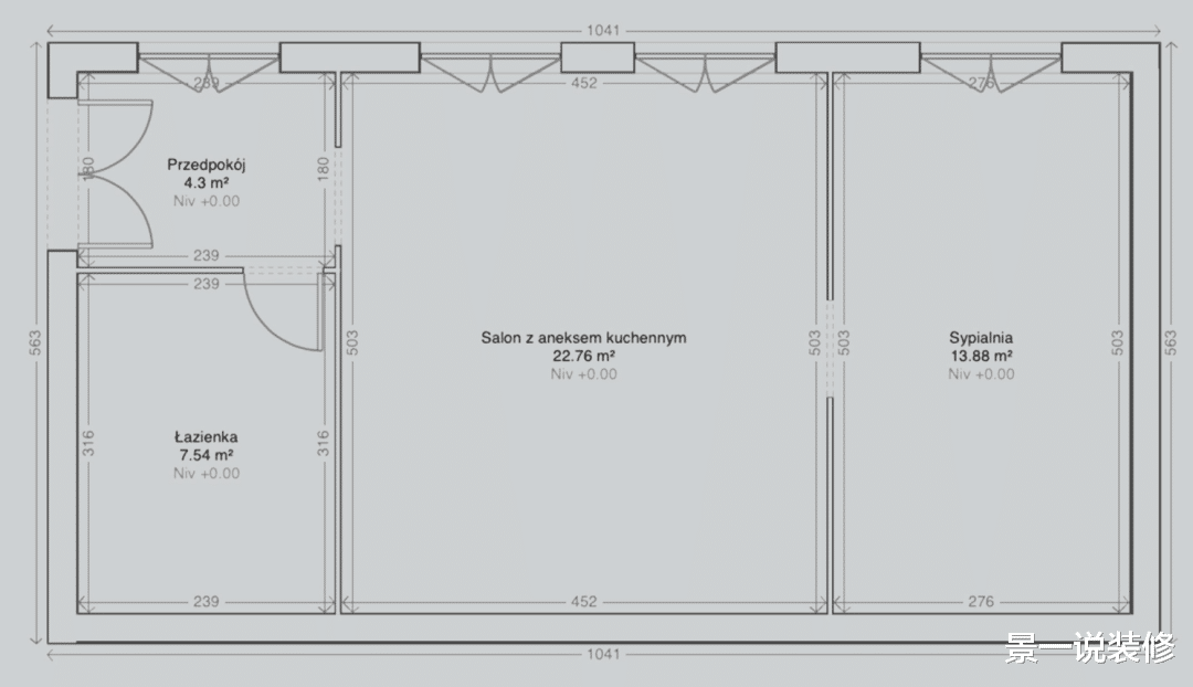
这是一个48㎡的小型公寓 , 可以看到公寓中每个部分以及对应的面积大小 , 通过此图 , 可以初步的了解整个房间大小和布局 。
首先 , 带领大家来看看整个公寓的平面图 , 由玄关部分进去 , 就是餐厅和客厅 , 以其为中心 , 两侧就是卫浴和卧室 。 公寓虽小 , 但布局完整 , 搭配完美 。
客厅:
在客厅中放上一张圆形的地毯 , 再在其中放上一张原木式小茶几 , 再搭配墨绿色半圆形的沙发 , 再放上一张单体沙发 , 尽显房间的小巧可爱 , 如果能和闺密在这里盘腿而坐 , 喝茶畅饮 , 真是惬意和舒适呀!
这仍然是客厅的一角 , 后面隐藏着小小的厨房 , 如果能够在这里做上自己喜欢的甜点和饮品 , 放到小茶几上慢慢品尝 , 感受生活 , 享受生活 , 自然也是美美哒 。
【|她买下48㎡小公寓,将墙全拆除,用玻璃做隔断,美翻】客厅的另外一侧就是卧室啦 , 从客厅望去 , 整面玻璃隔断扩大了公寓的空间 , 是业主喜欢的感觉 , 再放上小而别致的灯 , 整个公寓看起来就别有一般风韵 , 宁静雅致 。
舒适的沙发 , 棕色的窗帘 , 随时可以移动的落地灯 , 吃过晚饭后 , 如果想要看看书 , 读读报 , 这里绝对是最合适的地方 。 房屋的一角 , 不仅增添了客厅的舒适感 , 最重要的是多了一块小憩的地方 。
餐厅:
檀木色的餐桌 , 偏橘色而带有质感的椅子 , 在餐厅中再放上一幅同色系的窗帘 , 餐厅上空再悬挂小而别致的吊灯 , 房屋的主人一定特别喜欢这样复古的装饰 。 与房间中的浅蓝色进行搭配 , 显得高端大气 , 而且不会产生任何的审美疲劳 。
一眼望去 , 开放式的小型厨房显得格外耀眼 , 在小户型公寓里 , 这样的设计极大地节省了空间和耗材 , 对于20几岁正逐渐迈向社会开始奋斗新生活的她而言 , 这样的设计真是实惠又经济 。
透过餐厅和客厅就可以看到卧室啦!有的朋友可能会很疑惑 , 这个卧室有什么样的特点呢?
在图中我们可以看到 , 卧室的墙被拆除了 , 设计师用玻璃门代替墙将客厅与卧室隔开 , 这样的设计是不是能够使整个房间看起来更加宽敞明亮了呢?站在这样的角度为客户设计 , 使得整个卧室变得更加光线充足 , 通风透气 , 还美翻了 。
特别声明:本站内容均来自网友提供或互联网,仅供参考,请勿用于商业和其他非法用途。如果侵犯了您的权益请与我们联系,我们将在24小时内删除。
