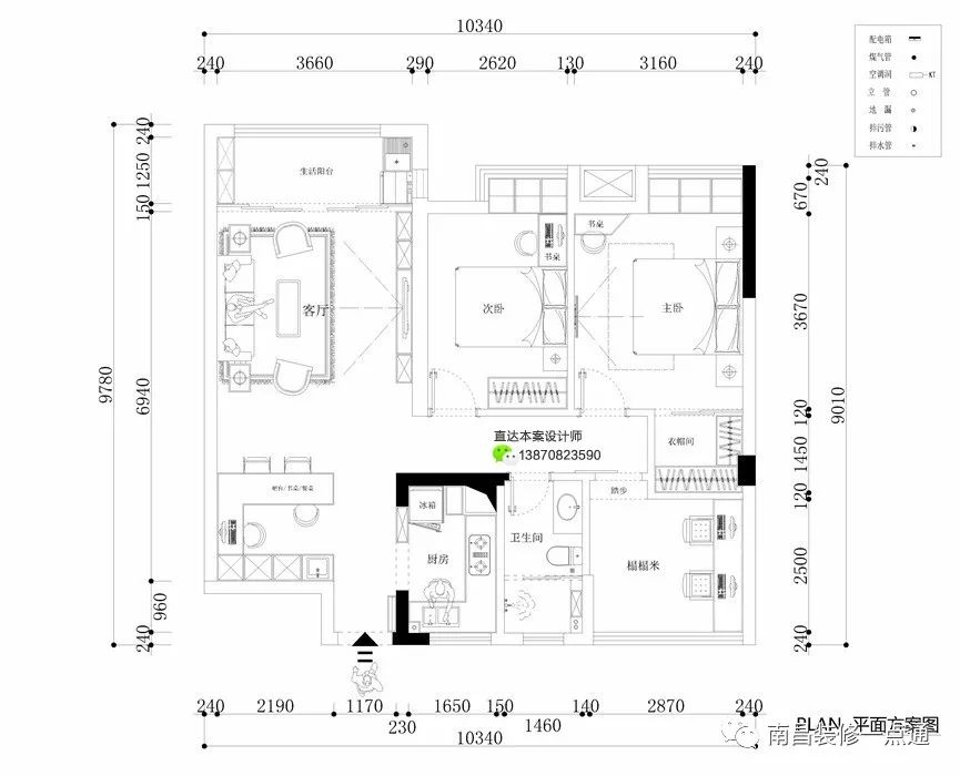
恒锦花苑98平三房工业风,主卧观影+次卧吃鸡,神仙眷侣般的日子

恒锦花苑98平三房工业风,主卧观影+次卧吃鸡,神仙眷侣般的日子

----恒锦花苑98平三房工业风 , 主卧观影+次卧吃鸡 , 神仙眷侣般的日子//----

恒锦花苑98平三房工业风,主卧观影+次卧吃鸡,神仙眷侣般的日子

----恒锦花苑98平三房工业风 , 主卧观影+次卧吃鸡 , 神仙眷侣般的日子//----

恒锦花苑98平三房工业风,主卧观影+次卧吃鸡,神仙眷侣般的日子

特别声明:本站内容均来自网友提供或互联网,仅供参考,请勿用于商业和其他非法用途。如果侵犯了您的权益请与我们联系,我们将在24小时内删除。