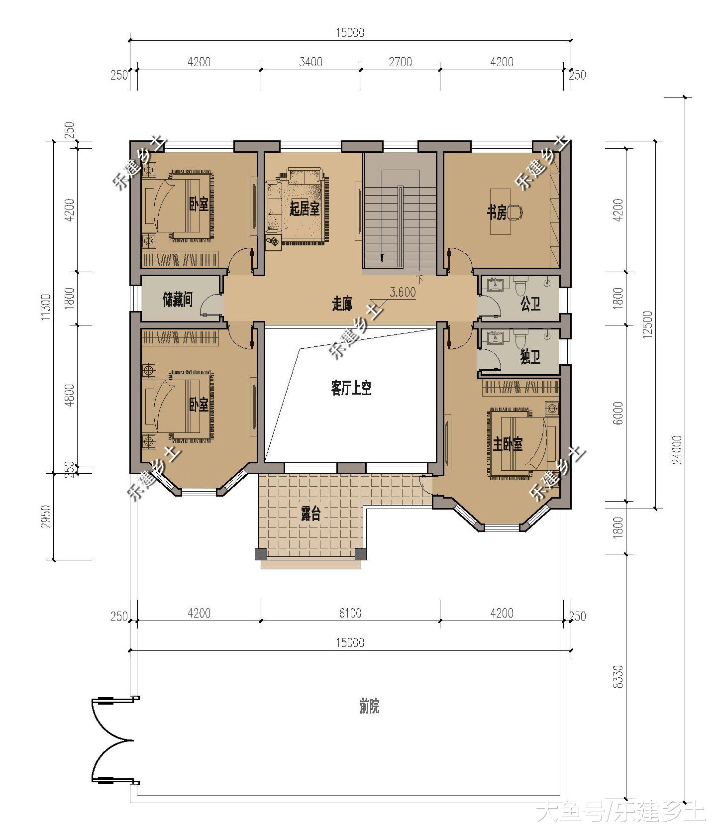
河北沧州周宅定制设计,二层15X14米欧式风格,造型精美

河北沧州周宅定制设计,二层15X14米欧式风格,造型精美

----河北沧州周宅定制设计 , 二层15X14米欧式风格 , 造型精美//----

河北沧州周宅定制设计,二层15X14米欧式风格,造型精美

----河北沧州周宅定制设计 , 二层15X14米欧式风格 , 造型精美//----

河北沧州周宅定制设计,二层15X14米欧式风格,造型精美

特别声明:本站内容均来自网友提供或互联网,仅供参考,请勿用于商业和其他非法用途。如果侵犯了您的权益请与我们联系,我们将在24小时内删除。