|齐家典尚 | 三室两厅日式风,简洁明亮又温馨,好喜欢!

文章图片

文章图片
【|齐家典尚 | 三室两厅日式风,简洁明亮又温馨,好喜欢!】
风格:日式
户型:三室两厅
日式风格 , 简洁 , 色调多为中性色调 , 多使用原木家具 , 在布局的设计上更注重多功能性以及实用性 。
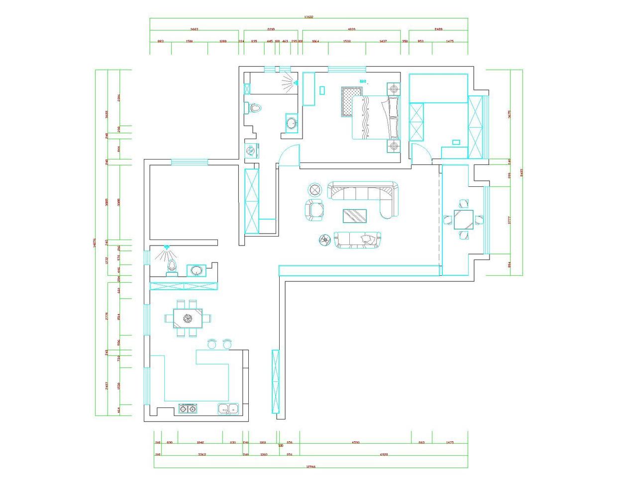
全屋户型图
整体开间比较大 , 采光很充足 。
客厅
报道式的客厅设计增加舒适性 。
卧室
温馨的色调搭配给女业主提供舒适的休息空间 。
厨房
开放式的厨房使餐厅整体空间更大 。
卫生间
独特的地面材质 , 增加空间层次感 。
特别声明:本站内容均来自网友提供或互联网,仅供参考,请勿用于商业和其他非法用途。如果侵犯了您的权益请与我们联系,我们将在24小时内删除。
