|30岁单身女性的小家,给自己高质量的生活,有房子就有底气单身

文章图片

文章图片

文章图片

文章图片

文章图片
听过一句很有趣的话 , “一个男人有了房子 , 就有底气找女朋友 。 一个女人有了房子之后 , 就有底气单身” , 这句话还是挺在理的 , 目前是一个很现实的社会 , 组建家庭肯定要生活过得去 , 不然还不如单身来的自由自在呢 。 下面介绍的这套只有40㎡的小户型房子 , 就是一个92年的单身女性 , 在城市打拼 , 实现了自己有房 , 不租房子住的高质量生活 , 就算以后结婚也是属于自己的婚前财产 。 在房子的装修方面 , 保持的是简洁清爽 , 有冷清的一面 , 也有温馨的装修效果 。 表现出女主人的理性 , 干练的气质 。 下面一起开看看吧 。
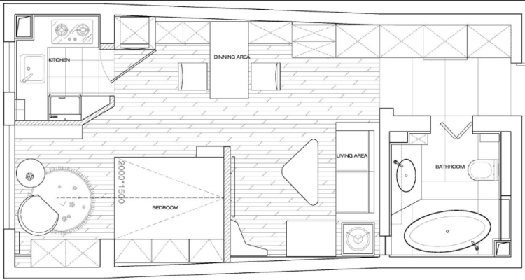
户型图是右边往左看 , 进门是一个通道 , 然后紧接着进去是客厅 , 然后是卧室和阳台 , 把餐厅布置在客餐厅之间的过道支出 。 让一个小房间实现的有独立的餐厅和客厅 。
左前方是入户玄关通道 , 作为年轻女性 , 鞋子衣物肯定很多 , 所以靠着墙面做了一排的柜子进来 , 蛮子鞋子和衣物收纳 , 还可以收纳书籍之类的 , 起到装饰的作用 。
小空间也腾出了一个几平米的客厅 , 摆上布艺沙发 , 茶几桌 , 铺上茶几地毯 , 让这个空间边等更有格调起来 。 电视墙做了一米高的隔断墙 , 挂上电视 , 以后下班或者休息时间 , 可以躺在客厅追剧 , 喝茶 , 都挺安逸的 。
整个家的装修效果 , 白色墙面 , 暖色木地板瓷砖 , 还有暖色的灯光 , 营造出简单而温馨的家居氛围 。
餐厅靠墙特意布置卡座板块 , 底部安装白色灯 , 配上白色餐桌 , 棕色的餐椅 , 形成深浅对比 。 餐厅挂上装饰画 , 还有一盏建议的餐厅灯 , 营造出一个很好的就餐氛围 。
餐厅和卧室看到前方的效果 。 地面铺浅暖色木纹砖 , 表现的更为温馨 。
卧室侧面墙贴的墙布和地面木纹色墙布相呼应 。 阳台采光十足 , 落地窗的视野很高 , 阳台侧面安装衣柜 , 满足衣物的收纳 。
厨房和通道效果 。 厨房是小U型的 , 特意腾出一个空间收纳洗衣机 , 让厨房更加实用起来 。
【|30岁单身女性的小家,给自己高质量的生活,有房子就有底气单身】卫生间用深灰墙面为主色 , 表现的更为有质感 , 有品位 。 增加了泡澡浴缸 , 在冬天时候泡澡休息 , 更是美美的享受 。
特别声明:本站内容均来自网友提供或互联网,仅供参考,请勿用于商业和其他非法用途。如果侵犯了您的权益请与我们联系,我们将在24小时内删除。
