|农村房子图纸

文章图片

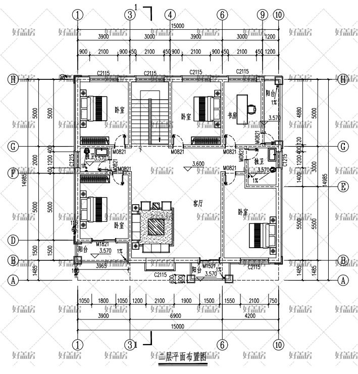
文章图片

文章图片

这是一种全新的中式外观风格的两层乡村别墅设计 。 除了欧式别墅外 , 中式别墅在农村也占有非常重要的位置 。这款别墅的外观装修比较简单 , 用白色、浅棕色、深棕色来装修很容易 。 户型方正 , 施工简单 , 造价经济 。
建筑层数:2层
结构形式:砖混结构
开间尺寸:15米
进深尺寸:14.9米
占地面积:204.3㎡
建筑面积: 604.3㎡
建筑风格:新中式风格
户型布局:6室3厅1厨4卫
主体造价:42~78万左右(因地域差异略有变动)
【|农村房子图纸】
特别声明:本站内容均来自网友提供或互联网,仅供参考,请勿用于商业和其他非法用途。如果侵犯了您的权益请与我们联系,我们将在24小时内删除。
