|拆除多余阳台,让家里拥有超大客厅,不到一百平也可以很大气

文章图片

文章图片

文章图片

文章图片

今天和大家分享的这个房屋是一对年轻夫妻的小家 , 业主两个人是在公司年会上认识的 , 虽然不是同一个部门但平时也会经常在公司遇到 , 慢慢的两个人走到了一起身边的同事也很羡慕两个人 , 本来女主人已经有了辞职回到老家的打算 , 但遇到男主人之后两个人就坚定了一起留在这里发展的决心 , 两个人也准备在举办完婚礼之后就用积蓄先开一个小店交给女主人打理 , 这对年轻的小夫妻也是一步步在走向更幸福的未来 。
拆除多余阳台 , 让家里拥有超大客厅 , 不到一百平也可以很大气
房屋户型:两室
房屋面积:97平方米
装修预算:20到30万元
所在城市:南京
设计师:王安安
主要建材:石材、磁砖、木作、喷漆、木地板、不锈钢
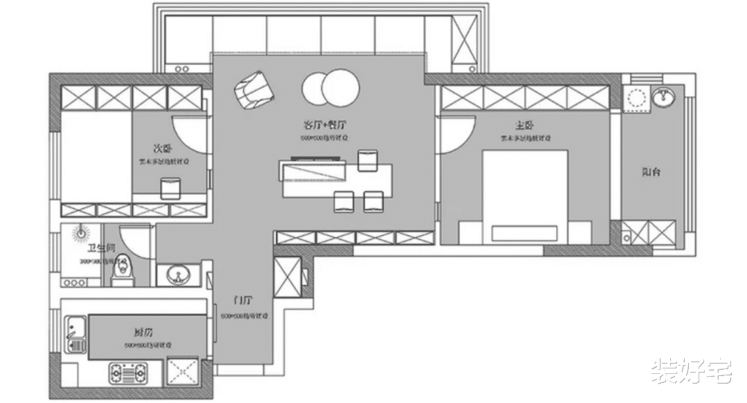
【户型图】
原本的户型当中家里有一个东面的阳台和一个朝南的阳台 , 不过这两个阳台的利用率并不是很高 , 所以装修的时候就选择拆除了多余的阳台 , 打造了一个更大的客厅 , 朋友到家里做客的时候都感觉客厅很宽敞 , 没想到不到一百平的家也可以这么大气 , 采光也很好 。
【客厅】
设计重点:卡座代替沙发
客厅大胆地选择了用卡座代替沙发的设计 , 一般我们在家里都会选择沙发 , 这样直接放弃沙发的设计也不是很多 , 不过这样设计之后客厅也是变得更加实用了 , 不仅有待客和休息的区域还多了更多的储物空间 , 平时直接躺在沙发上午睡一会也是很舒服的 , 还可以享受温暖的阳光浴 。
客厅的电视机也是选择直接悬挂在一个半墙上面 , 保证了室内的采光和通透性 , 也成为了家里一个独特的设计 , 很多朋友都想要借鉴这个设计 。
【餐厅】
设计重点:吧台卡座
家里的餐厅直接是一个定制的吧台 , 高脚凳也可以直接放置在吧台的底部 , 不会占用多余的空间 , 吃饭的时候也很方便 。
吧台是找师傅直接定制的 , 不仅可以当做餐桌还可以用来当做一个临时的办公区域 , 吧台也是和旁边的电视背景墙直接连在一起 , 也是一个多功能的区域 。
【厨房】
设计重点:干净简约
厨房面积不大却很整洁 , 女主人也通过储物柜和置物架完成了厨房的收纳 , 让整个空间更为简约实用。
【卧室】
设计重点:长虹玻璃装饰墙面
卧室选择了定制的衣柜可以满足业主放置衣物的需求 , 实木的护墙板和白色的乳胶漆搭配在一起也很有品位 , 另外卧室还选择了一块长虹玻璃来装饰墙面 , 让卧室更具时尚感 。
【儿童房】
设计重点:榻榻米设计
儿童房选择了榻榻米的设计 , 三面靠墙的设计可以让孩子更有安全感 。
【卫生间】
设计重点:绿色墙壁
卫生间选择了绿色的墙壁 , 让空间变得更为清新简洁 。
总结:拆除了多余的阳台 , 完成了客厅的扩容 , 改变格局之后家里也更加宽敞实用 。
特别声明:本站内容均来自网友提供或互联网,仅供参考,请勿用于商业和其他非法用途。如果侵犯了您的权益请与我们联系,我们将在24小时内删除。
