舒心|97平二居室杏黄色系充盈整个空间明亮舒适,很是舒心惬意

文章图片

文章图片

文章图片
【舒心|97平二居室杏黄色系充盈整个空间明亮舒适,很是舒心惬意】
文章图片

文章图片

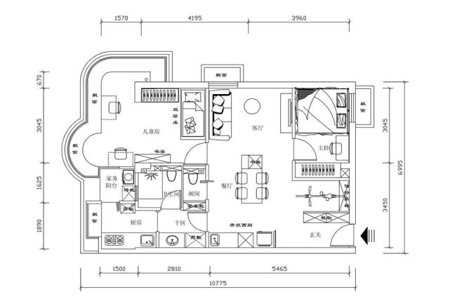
这是一套97平米的小户型装修 , 设计手法简约 , 杏黄色系充盈整个空间 , 色彩明亮舒适 , 也能住的舒心惬意 。 设计师在不做过多复杂饰面造型的情况下 , 采取了简洁白色墙面的做法 , 凸显出颜色和材质的美 。 软硬装张弛有度 , 营造出舒适温馨的日式家居飞卫 。 这套房子是学区房 , 两个宝宝 , 为了孩子住的舒适些 , 客户夫妇把主卧当做儿童房 。 空间动静线分区很棒 , 功能齐全
客厅布局要合理 。 面积比较大的客厅 , 在布局的时候将要注意沙发、电视的距离 , 过远会导致看的不清晰 。 大客厅的沙发就不要买小了 , 要不“压不住”空旷的客厅 。
客厅选择简洁的白墙和小型沙发 , 主要是给孩子留足够的空间
对于卧室来说 , 我们家家户户生活中最不能少了 , 卧室的功能主要是睡眠休息 , 属私人空间 , 不向客人开放 , 所以卧室的私密和温馨是我们装修时需要注意的 。
原本是主卧 , 因为是两个孩子 , 所以选择主卧安排两个孩子住
次卧做了客户夫妇的主卧 , 刚好够用 。 空间以白色和原木色为主色调 。
卫浴怎么装修?以前卫浴装修大家都会装一个浴霸 , 这样冬天洗澡不会太冷 , 但是现在时髦精们都选了暖风机 , 暖风机制热更均匀 , 避免了“头热脚不热”的尴尬状况 , 而且相对更为安全 。
卫生间干湿分离采用浴帘的形式 , 不破坏空间感 。 选择的灰色瓷砖 , 空间干净清爽 。
餐厅灯具的选择同样重要 , 灯具可选用白炽灯 , 经反光罩以柔和的橙黄光映照室内 , 形成橙黄色环境 , 消除死气沉沉的低落感 。 冬夜 , 可选用烛光色彩的光源照明 , 或选用橙色射灯 , 使光线集中的餐桌上 , 也会产生温暖的感觉 。
电视柜和上方做了简单的储物以及搭配 。 整个空间和谐舒适
餐厅顶部的吊顶 , 把餐厅和过道归纳为一个空间 , 餐厅空间也紧紧挨着厨房 , 极大的提高了整个餐厅的空间利用率 。
整个空间有一个大柱子 , 设计师依柱子做餐厅空间 。 使原本单一的空间变的丰富起来
厨房是我们“经营”一日三餐的地方 , 你说重要不重要?因此 , 在装修厨房重点打造橱柜的同时 , 千万不要忘记了厨房的电器 , 因为厨房除了需要考虑到收纳问题之外 , 多样化的电器也是不可避免的 。
厨房延续整体设计感 , 色调和选材靓丽简约 , 非常舒适
阳台设计要注意避免物品的过度堆积 , 阳台的使用频率不高 , 容易对物品的摆放产生疏漏 , 长此以往容易造成杂物堆积的现象 , 带来安全隐患建议 。 可以从空间上加以利用 , 合理搭配柜体来储物 , 不仅方便收拾还更加美观 。
特别声明:本站内容均来自网友提供或互联网,仅供参考,请勿用于商业和其他非法用途。如果侵犯了您的权益请与我们联系,我们将在24小时内删除。
