吃土少女爆改35㎡出租屋,墙刷粉绿色
----吃土少女爆改35㎡出租屋 , 墙刷粉绿色//----
----吃土少女爆改35㎡出租屋 , 墙刷粉绿色//----
----吃土少女爆改35㎡出租屋 , 墙刷粉绿色//----
----吃土少女爆改35㎡出租屋 , 墙刷粉绿色//----
----吃土少女爆改35㎡出租屋 , 墙刷粉绿色//----
----吃土少女爆改35㎡出租屋 , 墙刷粉绿色//----
星星告诉小编 , 她最近刚租了一套小房子 , 不大 , 就35㎡左右 , 因为采光不错 , 还有一个大浴缸!她一下子就签了3年!既然要住这么久 , 那自然需要好好改造一番 。
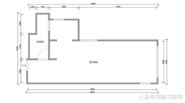
户型图:
【玄关】
原本的玄关简直就是灾难 , 堆着一堆杂物和垃圾 , 星星可是收拾了好久 , 终于弄个角落挂包包衣服还有放鞋子 。 原来玄关柜的柜门都松动了 , 星星干脆把柜门拆了 , 放个垫子当换鞋凳了 , 旁边的格子当展示柜 , 竟然感觉还不错!
【厨房】
厨房的面积不大 , 很多东西都没办法放 , 看着这面空着的墙 , 星星就想着不能浪费啊!就安装了几块搁板 , 一溜的杂物全都摆上去 , 整齐又好看!
【客厅】
由于整个房子呈“一”字型 , 窗户位于较远的一端 , 为了增加客厅采光 , 之前卧室和客厅之前的墙果断砸掉 , 使得整个空间更加通透 。 之前被浪费掉的电视墙做了整面柜子 , 大大加强了客厅的收纳功能 。
最让星星自豪的就是客厅的配色了 , 之前妈妈很不赞同星星想用绿色和粉红色刷墙 , 觉得就是配色灾难!结果花了一周末自己刷完 , 看着还有点小清新!
涂料选了很久还是用了硅藻泥 , 可以防止墙体发霉 , 原来的墙面就是有很多霉斑 , 星星才决定全部重新粉刷的 。 可能还是因为这个城市太湿润了吧!
定制的一米五小沙发超级舒适 , 充分满足了我在家“葛优瘫”的小惬意 , 软糯的灰色与粉色再次呼应了整体色系 。 反正星星就是爱粉色嘛!
特别声明:本站内容均来自网友提供或互联网,仅供参考,请勿用于商业和其他非法用途。如果侵犯了您的权益请与我们联系,我们将在24小时内删除。
