|越简单的装修,往往越高级,她85㎡新家,一进门就很显品味

文章图片

文章图片

文章图片

文章图片

文章图片

文章图片

文章图片

文章图片
说到简单化装修 , 相信很多人都不会和高级感联系在一起 。 因为在固有的印象中 , 简单的装修往往都是为了压缩装修成本 , 所以居住品质 , 也肯定不会太好 。 可事实上 , 若当空间简单到了极致 , 那么所表现出的效果就完全不同了 。
比如本期带来的这套案例 , 虽说在装修上很简单 , 空间表现也不够饱满 , 但所透露出的气息 , 却显得十分高级 。 同时 , 大量留空式的布局手法 , 还让人一进门就能感受到不俗的品质感 , 真的非常棒 。
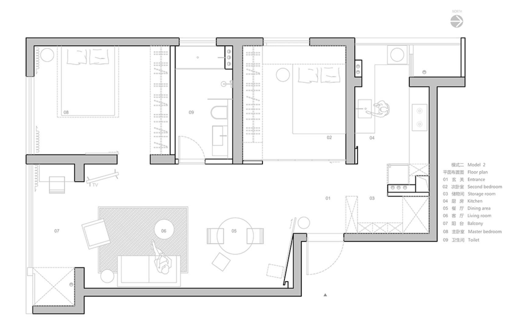
平面户型图
新房来自上海 , 套内面积85㎡ , 标准的两室两厅一厨一卫格局 , 屋主是一对小夫妻 。 从改造好的空间来看 , 整体十分工整 , 并且多个空间还做了半开放式设计 。 比如次卧、厨房、以及客餐厅等 。 这样一来 , 不仅实现了开合有度的空间结构 , 整个空间的采光及通风 , 也得到了很大的改善 , 具体通过下面实景再来解析 。
玄关
从一进门的处理就可以看出 , 整个空间是以极简风来定位的 。 当然 , 这种装修风格在当下也比较普遍 , 既可以打破空间边界 , 也能带来干净、利落的视觉感 。
原入户门旁边就有一个小杂物间 , 将其拆掉并利用柜体设计一个开放式鞋帽间 , 最大化地提高了空间利用率 , 并优化了生活动线 。
有一个小细节设计很棒 , 就是在鞋柜底部预留灯孔 , 不仅让屋主晚上回家后 , 有了一个微弱的照明 , 还让入户有了一种生活仪式感 。
客餐厅
通过玄关后 , 转角就是客餐厅 , 相较于常规的通透性处理手法 , 屋主则在客餐厅和玄关之间安装了一扇绛红色的木质移门 。 这样一来 , 既可以在这个以白调为主的空间中 , 点缀出了一抹活跃的气息 , 也可以提高客餐厅的私密性 , 从而营造出一种空间情绪 。
餐厅没有做过多的处理 , 直接配置一张圆形的餐桌 , 解决日常的用餐需求 。 同时 , 也赋予了空间一种灵活的秩序感 。
拉开绛红色的移门后 , 就是一面天然的餐厅背景墙 。 金属、原木、皮面、以及搭配上地面的微水泥材质 , 在硬朗中又有了一种质朴 , 看起来十分高级 。
来到客厅 , 大面积留白的设计手法 , 虽说有些简单、单调 , 但在搭配上多种色彩及元素的软装后 , 却立马彰显出了空间的高级感 。 尤其是取消阳台移门 , 并安装上纵向百叶窗帘后 , 更是营造出了灵动的光影层次 。
在家里只有两个人居住的情况下 , 选择更加轻巧的小体积家具 , 尽量不给空间增加负担 。 而当南阳台纳入客厅之后 , 则在一边设计了一组到顶的储物柜 , 以提高家里的收纳能力 。
特别声明:本站内容均来自网友提供或互联网,仅供参考,请勿用于商业和其他非法用途。如果侵犯了您的权益请与我们联系,我们将在24小时内删除。
