125㎡简约时尚家,色调温暖,设计巧心,符合现代人的审美

文章图片

文章图片

文章图片

文章图片

文章图片

文章图片

文章图片

文章图片

文章图片

文章图片

文章图片

文章图片

文章图片

文章图片

文章图片
现代风格家居设计彰显个性 , 简约而不简单 , 时尚而又典雅 , 具有浓郁的现代感 , 同时极具后现代主义经典设计元素 , 它将空间装饰得深沉、雅致又不失灵性 , 适合年轻时尚一族 , 成为越来越多时尚潮人装修的首选 。
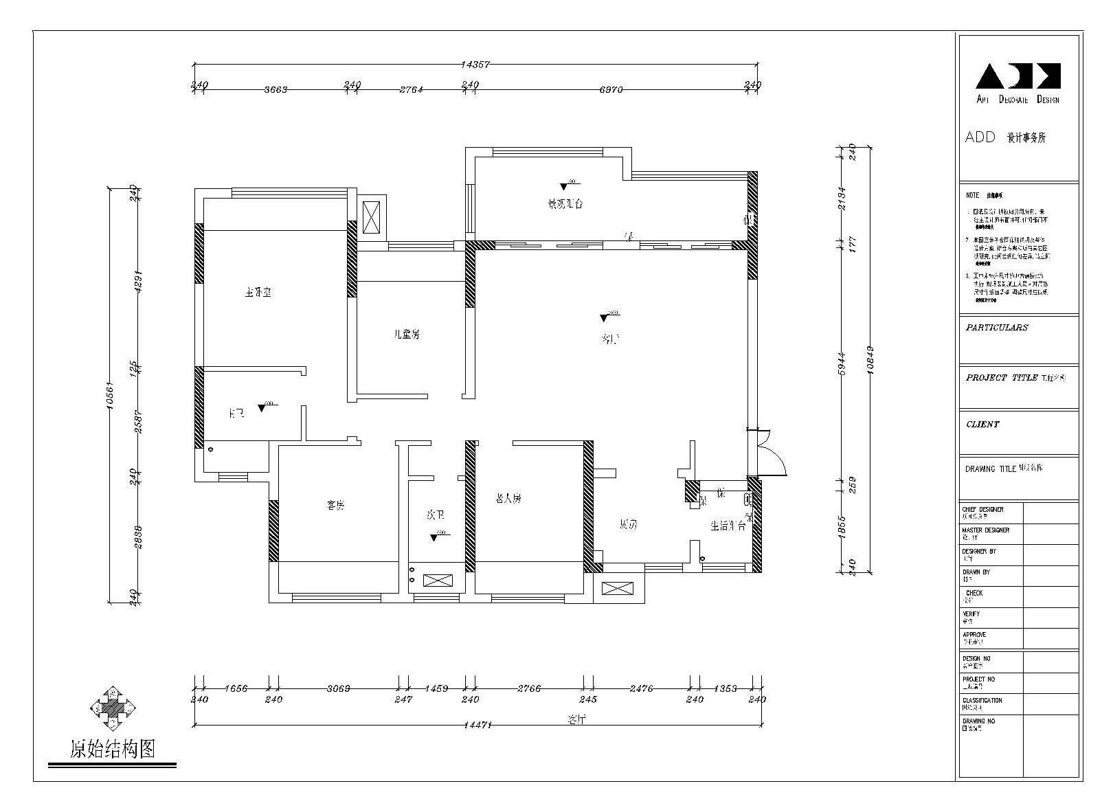
结构改造
本案的原始入户与生活阳台相邻 , 可操作空间小 , 于是设计师将入户与生活阳台打通 , 增加了入户区域的储物空间 , 使功能布局更合理 。 另外 , 设计师还改变了客房的进门位置 , 将次卫盥洗台分离出来 , 打掉过道与客房之间的墙壁做成了储物空间 , 让整体储物能力得到大幅度提升 。
案例详解
入户
木质与咖色搭配相得益彰 , 在柔和的灯光映照下 , 给人带来暖心的感觉 。 鞋柜底部预留的空间方便放置日常所穿之鞋 , 加入灯带效果可以增加入户的明亮度 。 敦实的换鞋凳给人以安全感 , 让迎来送往的亲朋安心落座于此进行进出的切换 。 简单的几笔粗线条勾勒出最搭调的展示效果 , 让空间呈现出现代的人居环境 。
客厅
木纹电视墙为空间注入温润气息 , 无主灯搭配边吊设计让视野更加开阔 , 巨大的落地窗将阳光引入室内 , 使空间无暗黑死角 。 与入户一脉相承的色彩搭配给晚归的主人带来浓浓的温馨感 。
一盏造型夸张的钓鱼灯充当了客厅的主光源 , 与顶上的点光源相结合 , 形成交相辉映之势 。 雅白的联排沙发置于灯下 , 黑色的靠垫与茶几、懒人椅相呼应 , 千鸟格给空间营造出时尚的氛围 。
特别声明:本站内容均来自网友提供或互联网,仅供参考,请勿用于商业和其他非法用途。如果侵犯了您的权益请与我们联系,我们将在24小时内删除。
