文章插图

文章插图
书房将艺术气息植入现代审美中,黑白摄影与现代艺术画作彰显主人的审美,肌理感墙纸搭配哑而不暗的金属光泽凸显出独特的优雅气质;浅木疏窗,微风穿堂,在书香满溢的中品味近在咫尺的诗与远方 。

文章插图

文章插图

文章插图

文章插图

文章插图
长辈房以灰色为基调,与木色相配,材质转换与色彩变化平缓而自然过渡,端正稳重,井然有序 。男孩房用略微明亮却不失清雅的色彩点缀,含蓄中充满不谙世事的天真,新奇有趣的陈设体现出独特的创造性与想象力 。

文章插图

文章插图

文章插图

文章插图

文章插图

文章插图

文章插图

文章插图
主卧床头植物主题的手绘墙纸在空间中描绘出内蕴悠远的自然艺术气息,与国山墅的山居文化背景融为一体 。床背的弧形设计以一个别出心裁的细节带来亮眼的层次变化 。精雕细琢的陈设细节无一不在设计中体现对完美的追求,将气韵流动的至雅之境装帧成天地自然的画卷 。

文章插图

文章插图

文章插图

文章插图

文章插图

文章插图

文章插图
艺术出于自然,而高于自然,带着对人文山水的体悟与沉淀取其意,演其境,用其韵,将诗意驻留在空间,传递着内敛的情怀,涤荡出岁月的光华 。
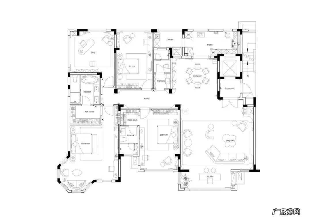
▼平面图

文章插图

文章插图
- 去鱼尾纹用什么最好的方法 去鱼尾纹方法方法
- 冬季如何做到防寒保暖?
- 指甲表面竖纹怎么回事 人的手指甲有竖纹是怎么回事
- 豪杰超级解霸是什么软件的 豪杰超级解霸是系统软件吗
- 用word做的图片怎么保存 如何批量保存word里的图片
- 用电脑做ppt的软件有哪些 电脑制作ppt的软件叫什么软件
- 在阳光充满的春天你的笑容依旧晚霞弯是什么歌的歌词?
- 书店的进货渠道 自己开书店进货渠道
- 普通肤质可以用敏感肌用的洗面奶吗 纯美印象洁面乳敏感肌能用吗怎么用
- 金字塔是怎么建成的 4500年前金字塔是怎么建的呀
特别声明:本站内容均来自网友提供或互联网,仅供参考,请勿用于商业和其他非法用途。如果侵犯了您的权益请与我们联系,我们将在24小时内删除。
