
文章插图
二 层: 主卧(带内卫)、3次卧、露台、卫生间
二楼南边的大主卧室带有私人卫生间和飘窗,北面设有三间次卧,采光极好,居住舒适度高 。
03

文章插图
二层新中式别墅设计图,占地约120平方米,清新优雅,符合农村的生活习惯 。镂空花纹铁艺护栏更加时尚美观 。
编号:zcB245层数:二层 结构形式:砖混结构 主体造价:22-25万
开间:11.8米 进深:10.5米 占地面积:119.18平方米 总建筑面积:236.08平方米

文章插图
多阳台多窗户设计,不仅为整体外观加分,也保证了室内采光和居住的舒适度,在众多乡村房屋中让人眼前一亮 。二楼卧室后门还设有花池,放置盆栽,种些小花等植物都是不错的,每天早起拉开窗帘,映入眼帘的就是充满了生命力的植物,心情舒畅 。

文章插图
一 层:玄关、客厅、2卧室、厨房、餐厅、卫生间

文章插图
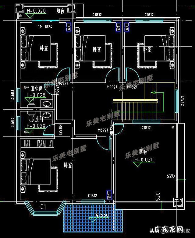
二 层:客厅、4卧室、书房、卫生间、阳台、露台
布局以实用为主,设有6间卧室,均带有采光通风窗,居住舒适度无需担心,足够一般4-6人口家庭使用 。
- 小孩子拉肚子怎么回事 小孩拉肚子是什么原因
- 小孩感觉鼻子不通气怎么办 小孩鼻子不通气怎么办特效方法
- 小米3电信版和联通版有什么区别 小米电信版和标准版有什么区别呢
- 羊小咩享花卡可以套出来吗 羊小咩享花卡消费额度怎么套出来?
- 《三国风云之猛将传》
- 小组赛积分相同怎么办 小组赛积分榜
- 万科每股分红 万科港股价格走势
- hosts修改生效 修改hosts没有权限保存
- 仙帝归来 小说 仙域归来小说
- 八部天龙白龙马的级别 小白龙是八部天龙吗
特别声明:本站内容均来自网友提供或互联网,仅供参考,请勿用于商业和其他非法用途。如果侵犯了您的权益请与我们联系,我们将在24小时内删除。
