39㎡小蜗居, 客厅抬高40cm! 变“2室1厅”, 忍不住晒晒谁见过?

39㎡小蜗居, 客厅抬高40cm! 变“2室1厅”, 忍不住晒晒谁见过?

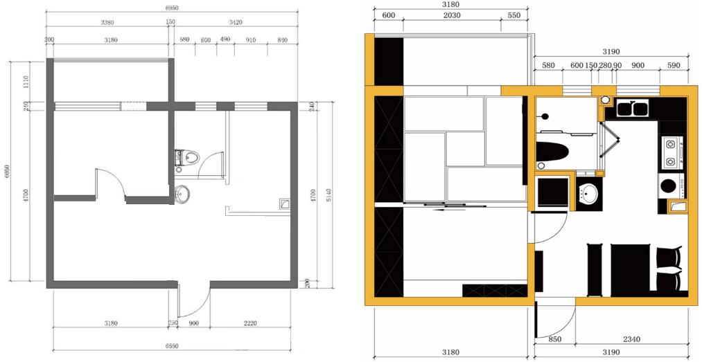
----39㎡小蜗居 客厅抬高40cm! 变“2室1厅” 忍不住晒晒谁见过?//----

39㎡小蜗居, 客厅抬高40cm! 变“2室1厅”, 忍不住晒晒谁见过?

----39㎡小蜗居 客厅抬高40cm! 变“2室1厅” 忍不住晒晒谁见过?//----

39㎡小蜗居, 客厅抬高40cm! 变“2室1厅”, 忍不住晒晒谁见过?

特别声明:本站内容均来自网友提供或互联网,仅供参考,请勿用于商业和其他非法用途。如果侵犯了您的权益请与我们联系,我们将在24小时内删除。