118㎡新中式别墅,三十几万建一栋,日子越过越红火
----118㎡新中式别墅 , 三十几万建一栋 , 日子越过越红火//----
----118㎡新中式别墅 , 三十几万建一栋 , 日子越过越红火//----
----118㎡新中式别墅 , 三十几万建一栋 , 日子越过越红火//----
----118㎡新中式别墅 , 三十几万建一栋 , 日子越过越红火//----
----118㎡新中式别墅 , 三十几万建一栋 , 日子越过越红火//----
----118㎡新中式别墅 , 三十几万建一栋 , 日子越过越红火//----
"multi_version":false
传统的别墅建造风格固然好看 , 潮流的发展是在这种基础上除掉不流行的元素 , 然后再加些改善 。 新中式正是这样 , 加上了现代的设计 , 变得更加有特色之美 。
今天这款江西苏总私人定制的三层新中式别墅 , 户型方正实用 , 现代元素与传统元素相结合 , 别有一番韵味 。
1、户型编号:JF9343
2、主体毛坯参考造价:33-40万
3、占地面积:118.95平方米
4、建筑面积:320.21平方米
5、开间11.5米 , 进深11.5米
6、异形柱框架结构 , 建筑高度12.205米
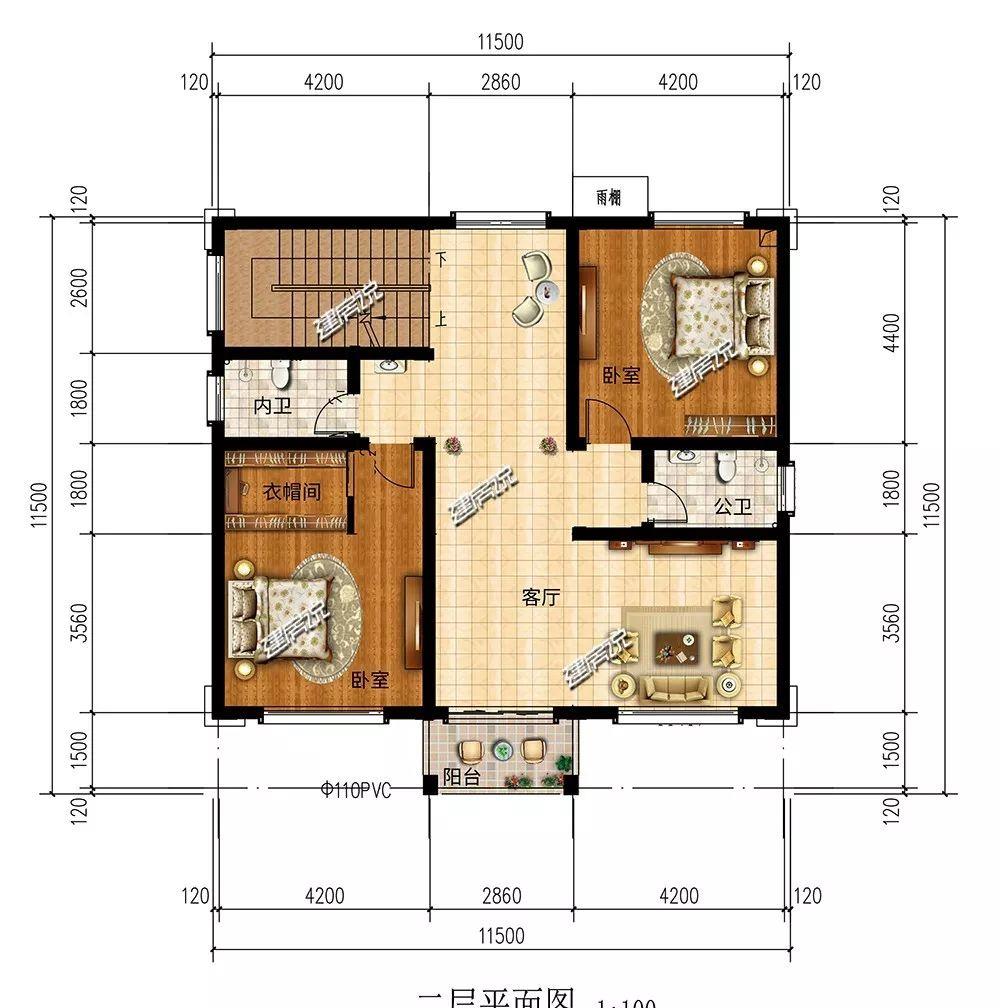
平面布局图
一层:入门是宽敞客厅 , 方便接待多为亲朋好友;餐厅与厨房相连 , 用餐便利;设有1间储物间 , 方便家里放置杂物等 。
二层:设有2间卧室 , 大小合适;设有客厅 , 方便家人之间联络走动;客厅外的阳台设计 , 利于通风采光 , 舒展身心等 。
三层:书房的设计 , 让别墅书香气息满满;起居室便于家人之间联络走动 , 闲坐;宽大的露台 , 可以种植花草、娱乐休闲等 。
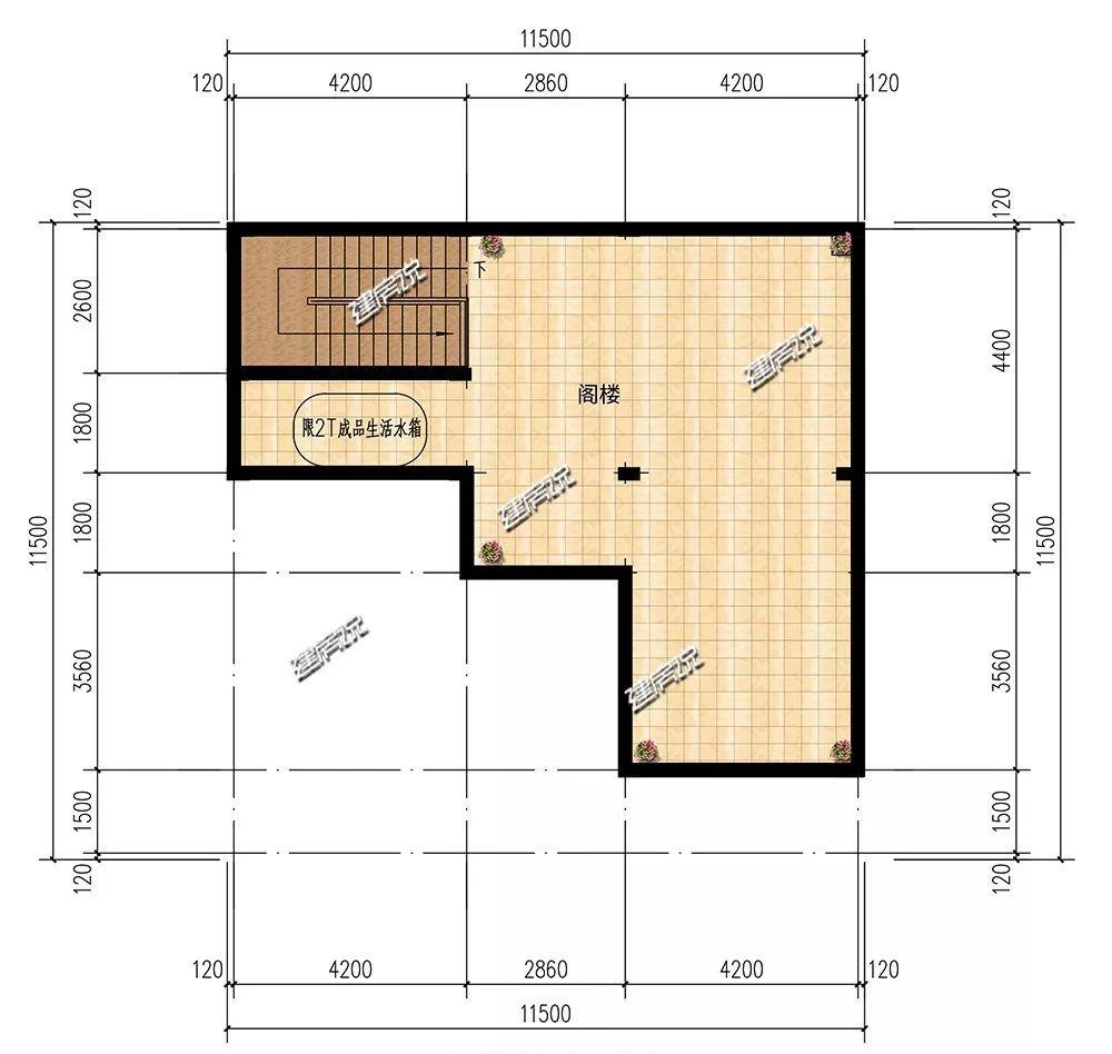
阁楼:可以放置不常用的大物件 , 储存物品;成品水箱位的设置 , 便于生活用水的储存 。
特别声明:本站内容均来自网友提供或互联网,仅供参考,请勿用于商业和其他非法用途。如果侵犯了您的权益请与我们联系,我们将在24小时内删除。
