
文章插图

文章插图

文章插图
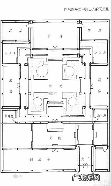
倒座房
紧邻四合院大门,坐南朝北跟正房相对的房屋 。通常为外客厅、账房、门房、客房、仆人居住等用途 。

文章插图

文章插图

文章插图
垂花门
垂花门是中国古代建筑院落内部的门,因其檐柱不落地,垂吊在屋檐下,称为垂柱,其下有一垂珠,通常彩绘为花瓣的形式,故被称为垂花门 。它是内宅与外宅(前院)的分界线和唯一通道 。旧时人们常说的“大门不出,二门不迈”,“二门”即指此垂花门 。

文章插图

文章插图

文章插图
抄手游廊
连接和包抄垂花门、厢房和正房,雨雪天可方便行走 。

文章插图

文章插图

文章插图
有的正房和厢房带廊子 。五间的是三间正房两间耳房,耳房是单开门,所谓“三正两耳” 。七间的,在正房和耳房之间,有两个与正房相通的(在山墙开门)套间儿 。东西厢房各三间,厢房和耳房之间,有个过道儿,可以通后院 。

文章插图

文章插图

文章插图

文章插图

文章插图

文章插图

文章插图

文章插图

文章插图

文章插图

文章插图

文章插图

文章插图
【四合院风水好吗 古代四合院风水】
- 厂房位置与风水 厂房门口地势低风水
- 婚姻线和感情线相交好吗
- 深圳风水最好的地方 深圳各区风水
- 风水口诀大全 风水常用口诀
- 俯瞰寺院的高楼风水 寺庙前有高楼风水
- 反弓路风水一定不好吗 反弓路风水的化解
- 纯铜的五帝钱管用吗 五帝钱不是真的有没有风水效果
- 风水十二宫怎么解释 八宅风水九星宫位排法
- 风水如何补金 风水补金的方法
- 哪些客厅风水油画图案有助家庭和谐
特别声明:本站内容均来自网友提供或互联网,仅供参考,请勿用于商业和其他非法用途。如果侵犯了您的权益请与我们联系,我们将在24小时内删除。
