用中式色彩做填充,用现代的元素做点缀,打造层次丰富的别墅空间

文章图片

文章图片

文章图片

文章图片

文章图片

文章图片

文章图片

文章图片

文章图片

文章图片

文章图片

文章图片

文章图片

文章图片

文章图片
经常看到电视里的清宫戏 , 很容易被里面华丽的中式装修和设计所吸引 。 虽然现在都是高楼大厦 , 但是想要把戏里的中式元素都带进家门也不是一件难事 , 尤其是融合了现代元素之后 , 更加丰富了传统中式文化的独特韵味和深厚底蕴 。
用中式色彩做填充 , 用现代的元素做点缀 , 打造层次丰富的别墅空间
房屋户型:别墅
房屋面积:183平方米
装修预算:50万
设计师:李文伟
主要建材:线板、木皮、喷漆、大理石、黑铁漆、铁件、玻璃、木地板、壁纸
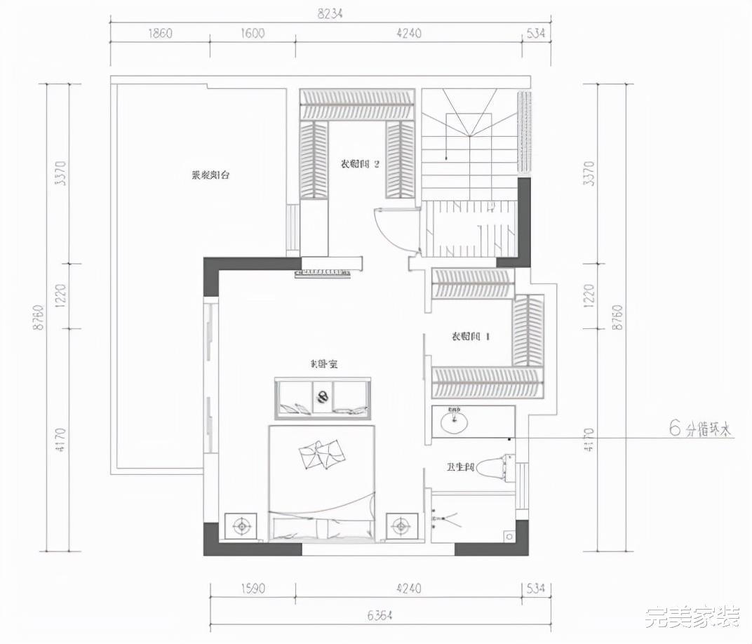
【户型图】
别墅户型的改造空间比较大 , 一层和二层都需要进行重新的规划和布局 。 设计师比较追求实用功能 , 利用中式元素搭配出空间的沉稳和理性 。
原始户型里的收纳空间非常少 , 所以设计师在整个三层都增设了非常多的收纳区 , 满足一家人的收纳需求 , 同时也提高了空间的利用率 。
【玄关】
设计重点:规整展架凸显格局通透
一进入到玄关首先就能看到整面实木的收纳柜 , 中间的凹槽作为展示区 , 陈列着小型的工艺品 , 搭配上方的毛笔字画 , 一下子就把整个空间的中式风情烘托了出来 。
特别声明:本站内容均来自网友提供或互联网,仅供参考,请勿用于商业和其他非法用途。如果侵犯了您的权益请与我们联系,我们将在24小时内删除。
