九龙帝景湾91平两房美式风,唯美护墙,高颜值和强收纳,赶紧看看
----九龙帝景湾91平两房美式风 , 唯美护墙 , 高颜值和强收纳 , 赶紧看看//----
----九龙帝景湾91平两房美式风 , 唯美护墙 , 高颜值和强收纳 , 赶紧看看//----
----九龙帝景湾91平两房美式风 , 唯美护墙 , 高颜值和强收纳 , 赶紧看看//----
"multi_version":false
案例信息
工地名称:九龙帝景湾
设计风格:美式
面 积:91平方
户 型:两房两厅
所用材质:三拼地板地板、定制石膏线条、线条造型柜门、布艺沙发..
九龙帝景湾这套91平户型前期有装修过的业主需求 , 很多希望能改成三房 , 但是今天带来的这套案例 , 客户则有着自己独特的想法 , 做开阔性两房 , 同时品质感及舒适性、多功能性都需要得到最大化满足 。 定位美式轻奢风格 , 不走寻常路的方式 , 一起来看看吧 , 工地正在施工中 , 参观可预约 , 全景大图方案及报价明细可以直接咨询文后设计 。
你脑海中的美式风格是怎样的?餐厅厨房打破格局后 , 客厅空间获得了更丰富的采光及功能使用 。 入户即见客餐厅的户型 , 基于私密性及丰富感考虑 , 入户打造了一扇不锈钢线条材质半透半遮的端景柜 , 如果您也不想一眼就把客厅全部看穿 , 不妨试试这种方式 。
整体色调以灰色、蓝色为主 , 结合美式风格中常见的护墙板元素做创新后的变化处理 , 护墙板、乳胶漆、石膏线多种材质的交叉组合 , 带来更为层次感的视觉效果 。
立面的造型表现及功能处理离不开平面设计时的规划探讨 , 每一个区域的尺寸设置及业主自身的使用方式决定了我们后期效果的呈现 。 背景墙储物柜格两侧对称布置 , 加入灯光效果后 , 给空间增添唯美与温馨 。
原始户型厨房门洞比较窄小 , 改变门洞朝向后 , 同时拆除北阳台改造成小吧区 , 另三口之家的生活多了一处更为小资和休闲的地方 。 蒸箱、烤箱、餐边柜、对门大冰箱...格局改变后也另女主人的这些硬性需求得到了很好的呈现 。
卧室整体色调采用了静谧的灰色调 , 背景墙以白色和大地色进行双拼处理 , 再辅以石膏线雕花元素 , 时尚而又带点轻奢复古气息 , 居家的品质感从细节即可略探一二 。
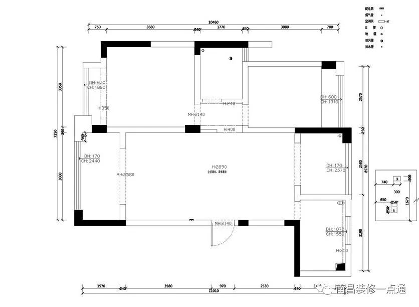
户型图
平面图
不做过多展示了哦 , 除了您所追求的施工品质 , 我们还确保效果成品的落地
特别声明:本站内容均来自网友提供或互联网,仅供参考,请勿用于商业和其他非法用途。如果侵犯了您的权益请与我们联系,我们将在24小时内删除。
